Character-filled home on a very large plot with conversion potential.
Panoramic countryside views from large mullion windows
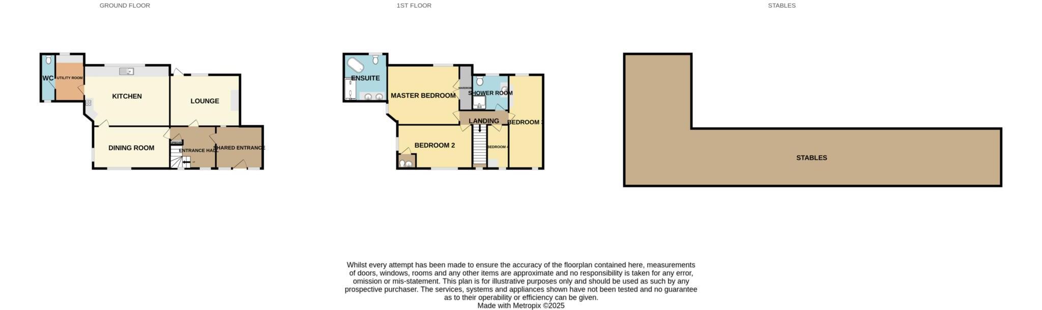
This stone-built barn conversion dating from 1830 combines generous living space with striking countryside panoramas. High ceilings, exposed beams and mullion windows create strong period character across a spacious kitchen, two reception rooms and four bedrooms, including a large master with en suite. The plot is very large with formal lawn and a low-maintenance rear garden framed by open views.
Practical assets include extensive off-street parking for up to fifteen vehicles, useful utility space, double glazing (post-2002) and a septic tank under guarantee. Significant development potential exists: a loft conversion could add two bedrooms and the on-site stables offer scope for an annex, office or workspace — both subject to necessary planning permissions.
Buyers should note several material considerations. Heating runs on LPG/oil via boiler and radiators (no mains gas), the EPC rating is F, and the original sandstone/limestone walls are assumed uninsulated, so energy costs and retrofit work are likely. Council Tax is in a high band (G). Any conversion of the loft or stables will require formal planning consent and building work.
This property will suit families seeking a character home with space for hobbies, home working or equestrian use, and buyers open to measured upgrading. It also appeals to investors seeking conversion upside, subject to permissions and retrofit investment.
5 bedroom detached house for sale in Wilkes Street, Moorside, Oldham, OL1 — £800,000 • 5 bed • 3 bath • 3358 ft²
4 bedroom barn conversion for sale in 2 Acre View, Whitegates lane Strinesdale Saddleworth, OL4 — £879,000 • 4 bed • 3 bath • 1920 ft²
4 bedroom link detached house for sale in The Coach House, Burnedge, Rochdale, Lancashire, OL16 — £800,000 • 4 bed • 3 bath • 2500 ft²
4 bedroom detached house for sale in Clough Mount, Shaw, OL2 — £675,000 • 4 bed • 1 bath • 1862 ft²
4 bedroom detached house for sale in Shaw Hall Barn, Shaw Hall Close, Greenfield, Saddleworth, OL3 — £600,000 • 4 bed • 4 bath • 1496 ft²
4 bedroom barn conversion for sale in Glossop Road, Stockport, SK6 — £950,000 • 4 bed • 2 bath • 2338 ft²


















































































































































