Long lease — 977 years remaining
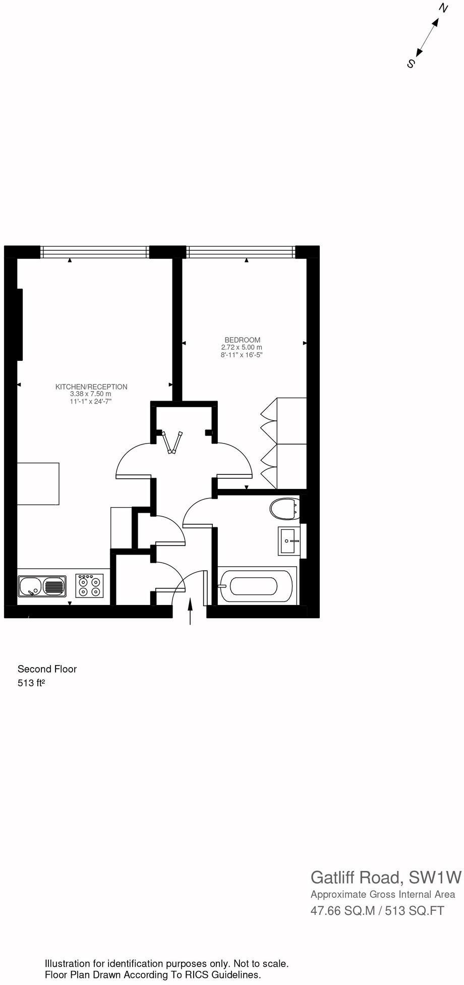
Set within the gated Grosvenor Waterside development in Chelsea, this contemporary one-bedroom apartment delivers turnkey urban living with substantial communal facilities. The open-plan reception and large windows maximise light across roughly 517 sq ft, while built-in wardrobes, a modern kitchen with integrated appliances, and a sleek bathroom present a comfortable, low-maintenance home.
Residents benefit from an extensive amenity package — 24/7 concierge, gym, spa and wellness facilities, and secure underground garage parking — that suits a busy professional or someone seeking a serviced city base. The 977-year lease removes long-lease concerns common in central London, and reliable tech and utilities (excellent mobile, fast broadband, community heating) support everyday convenience.
Affordability considerations are important: the development carries an above-average service charge (circa £6,000pa) and a relatively high ground rent (£782pa), plus council tax above the local average. The apartment’s compact footprint is ideal for a single occupant or couple but offers limited space for larger households.
This apartment will appeal to first-time buyers or professionals wanting a central Chelsea address with strong building services and low immediate maintenance. It also suits buy-to-let investors seeking a ready-made tenant proposition, though running costs should be factored into yield calculations.



























































