Single-floor living with garage, garden and low running costs for easy living.
- Recently modernised throughout, move-in ready
- Compact footprint ~506 sqft; limited internal space
- Single bathroom only; may suit smaller households
- Integral garage plus driveway parking and storage area
- Split-level lawn and patio rear garden, decent plot
- Freehold with affordable Council Tax Band C
- Double glazing fitted; installation date unknown
- Built 1967–1975; check services and insulation
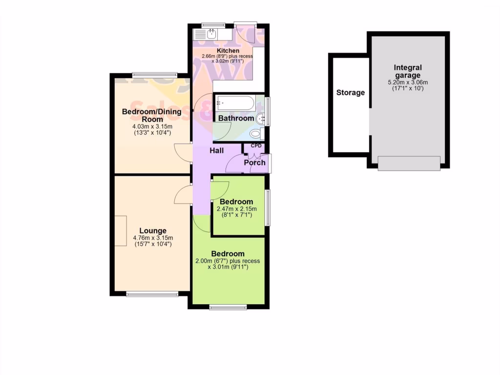
This semi‑detached, single‑storey home on an elevated plot has been recently modernised and is offered ready to move into. The accommodation is compact (about 506 sqft) but well planned, with a lounge, three bedrooms (one currently used as a dining room), a stylish bathroom and a fitted kitchen. An integral garage, off‑road driveway and a split‑level rear garden add practical outdoor space.
The property sits in a comfortable, multi‑ethnic suburb of Preston (PR1) with fast broadband, excellent mobile signal and a selection of nearby primary and secondary schools. It is freehold with an affordable Council Tax Band C and no flood risk — practical points for downsizers or buyers seeking a low‑maintenance single‑storey home.
Buyers should note the smaller overall footprint and a single bathroom may limit suitability for larger households. Double glazing is present but the installation date is unknown. Crime levels are average; the build dates to the late 1960s–1970s so longer‑term buyers may want to check mechanical systems and insulation details despite the recent cosmetic upgrades.
A virtual viewing is available for first inspection, and the property will appeal to buyers looking to downsize, invest in a low‑upkeep home, or secure single‑level living within easy reach of local amenities.
2 bedroom bungalow for sale in Lytham Road, Ashton On Ribble, Preston, PR2 — £215,000 • 2 bed • 1 bath • 626 ft²
2 bedroom bungalow for sale in Travers Place, Ashton On Ribble, Preston, PR2 — £195,000 • 2 bed • 1 bath • 833 ft²
3 bedroom semi-detached bungalow for sale in Ramsey Avenue, Preston, PR1 — £199,995 • 3 bed • 1 bath • 570 ft²
2 bedroom semi-detached bungalow for sale in Arrowsmith Drive, Preston, PR5 — £190,000 • 2 bed • 1 bath • 752 ft²
2 bedroom bungalow for sale in Foxdale Grove, Preston, PR1 — £210,000 • 2 bed • 1 bath • 616 ft²
3 bedroom bungalow for sale in Victoria Road, Fulwood, Preston, PR2 — £319,950 • 3 bed • 1 bath • 784 ft²


























































