Spacious two-bedroom home with balconies and excellent local schools.
Direct River Thames views from two private balconies
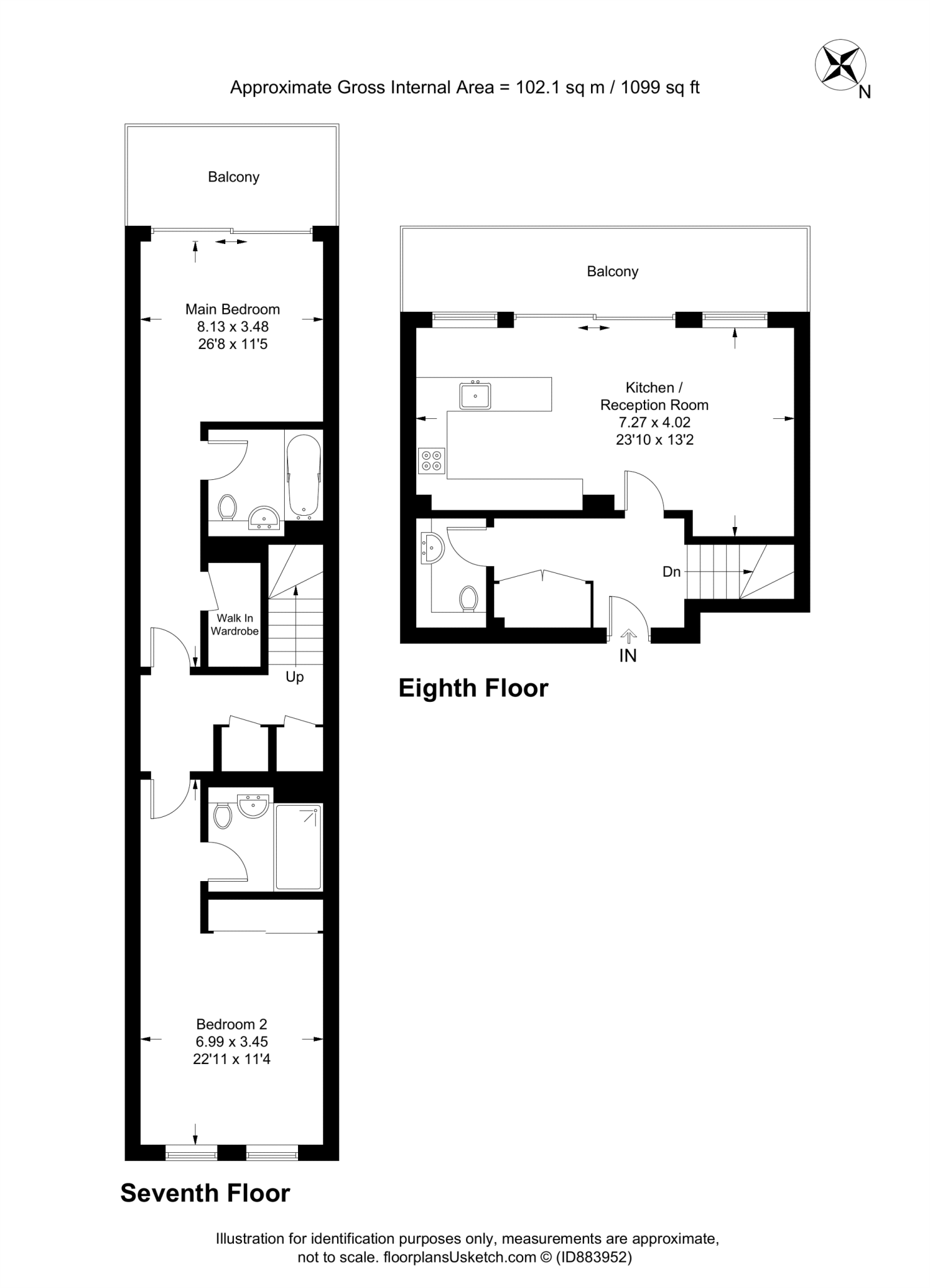
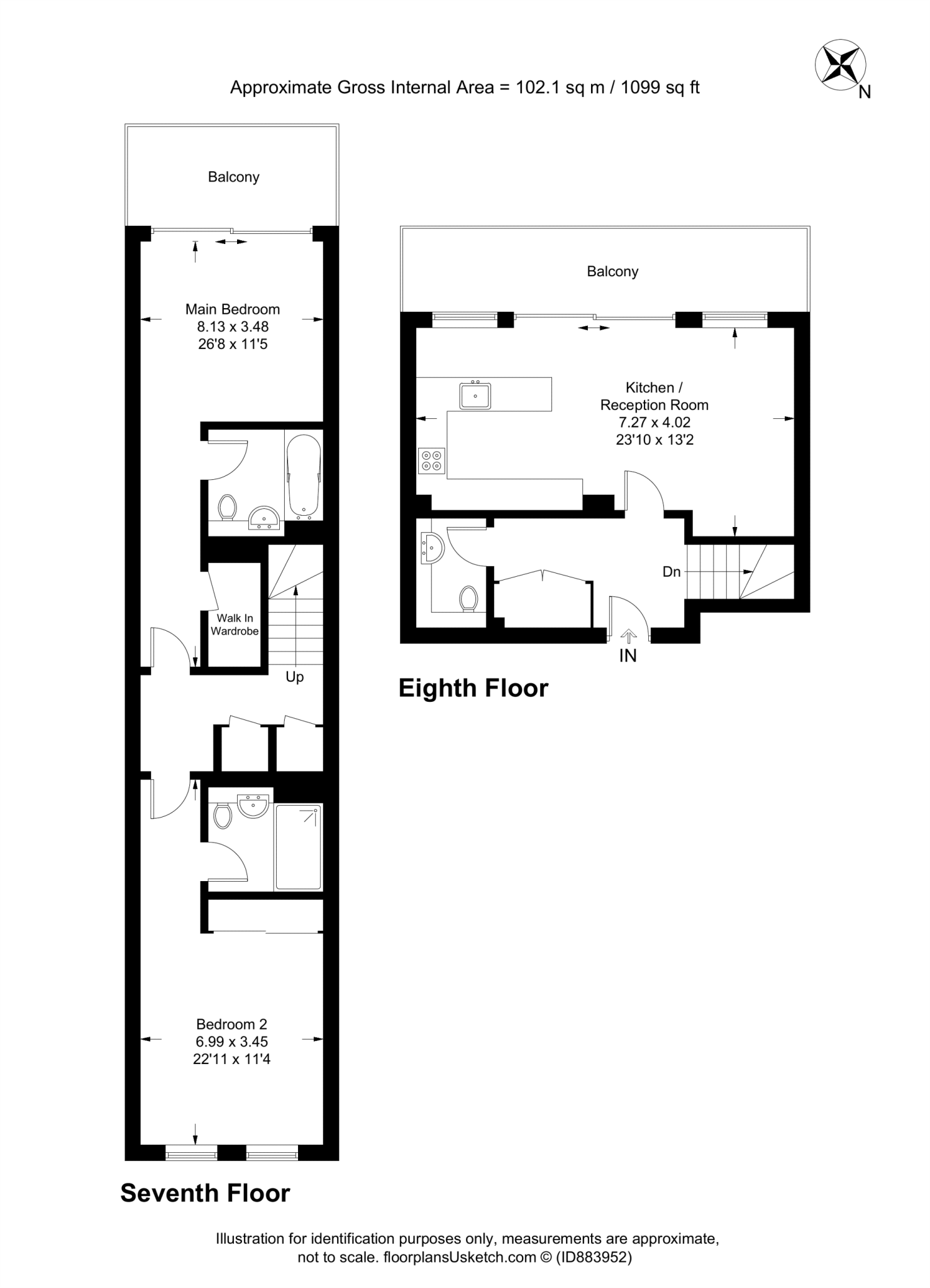
Large duplex layout – approximately 1,099 sq ft over two floors
Both bedrooms include private ensuite bathrooms
Excellent built-in storage and large windows throughout
Part of a community electricity and heating scheme (communal costs possible)
Leasehold tenure — check lease length, ground rent and service charges
Built 2003–2006 with system-built walls and internal insulation
Local area shows signs of deprivation despite good amenities nearby
Set within a modern riverside development, this two-bedroom duplex offers bright, flexible living across two floors with direct views of the River Thames. Both bedrooms have ensuite bathrooms and there are two private balconies, ideal for morning coffee or evening sunsets. At around 1,099 sq ft, the flat feels spacious and benefits from excellent built-in storage and large windows that maximise natural light.
The development provides stylish communal gardens and water features, with immediate access to a large supermarket and the shops and restaurants along Wandsworth Bridge Road. Several highly rated local schools are within easy reach, making the location suitable for families who want riverside living with convenient amenities and transport links.
Important practical points: the property is leasehold and part of a community electricity and heating scheme, which may involve service charges and communal management. The building was constructed in the early 2000s using system-built walls with internal insulation — efficient but different from traditional masonry. The surrounding area shows signs of wider deprivation despite the established, cosmopolitan inner‑city setting.
This flat will suit buyers seeking a contemporary riverside home with generous internal space and outdoor terraces. It is offered as a modern, turn-key home for those who prioritise light, views and easy access to local schools and shops; prospective purchasers should confirm lease terms, service charge arrangements and any communal running costs before committing.
2 bedroom flat for sale in Central Avenue, Fulham, London, SW6 — £2,100,000 • 2 bed • 2 bath • 1215 ft²
2 bedroom duplex for sale in Riverwalk Apartments, 5 Central Avenue, Fulham, London, SW6 — £1,100,000 • 2 bed • 2 bath • 1281 ft²
2 bedroom flat for sale in Central Avenue, Fulham, London, SW6 — £900,000 • 2 bed • 2 bath • 1037 ft²
2 bedroom apartment for sale in Westbourne Apartments, 5 Central Avenue, SW6 — £1,000,000 • 2 bed • 2 bath • 1303 ft²
2 bedroom flat for sale in Central Avenue, Fulham, London, SW6 — £1,500,000 • 2 bed • 2 bath • 1121 ft²
2 bedroom apartment for sale in Riverwalk Apartments, 5 Central Avenue, SW6 — £1,100,000 • 2 bed • 2 bath • 1263 ft²


































































































