Imposing three-bedroom Victorian terrace close to Lytham town centre and schools..
Freehold Victorian terrace in central Lytham
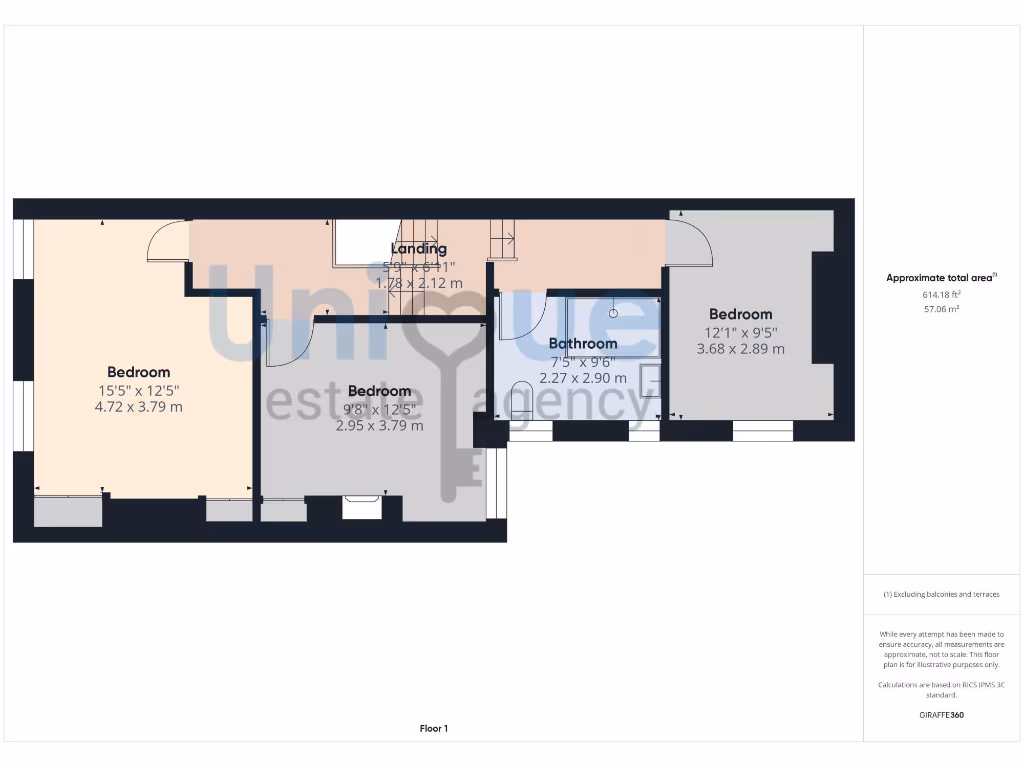
Three double bedrooms with high ceilings and original features
Two reception rooms plus fitted kitchen and separate utility
Recently installed modern four-piece shower room
Small, low-maintenance rear garden with single off-street parking
Parking permits available (Zone A) at about £25 per year
Potential to extend subject to planning permission
Single main bathroom; limited rear plot and parking space
This imposing Victorian terrace on Westby Street offers comfortable family living in the heart of Lytham. High ceilings, bay windows and period cornicing retain original character while upgraded fittings provide modern convenience. The house is well presented throughout and sits close to Lytham town centre, green space and good local schools.
The ground floor provides two reception rooms, a fitted kitchen with Rangemaster cooker and a separate utility; practical rear parking is accessed via double gates. Upstairs are three double bedrooms and a recently installed, contemporary four-piece shower room. The property is freehold and priced to sell, with scope to extend subject to planning if more space is required.
Outside, a cottage-style front garden and low-maintenance stone-flagged rear garden lead to a single off-street parking space. Residents in this zone can buy parking permits (two main and two visitor permits) for approximately £25 per year. Broadband and mobile signal are strong, and the local area is affluent with ready access to shops, eateries and rail links.
Notable drawbacks: the property has a single main bathroom, a relatively small rear plot, and typical terrace layout limits side access. Buyers seeking a larger garden or multiple parking spaces should check planning options and local restrictions before committing.
5 bedroom terraced house for sale in Windmill House, 13, Church Road, Lytham, FY8 — £750,000 • 5 bed • 3 bath • 2036 ft²
3 bedroom terraced house for sale in Bannister Street, Lytham, FY8 — £445,000 • 3 bed • 2 bath • 1388 ft²
8 bedroom semi-detached house for sale in Upper Westby Street, Lytham St. Annes, FY8 — £800,000 • 8 bed • 4 bath • 3681 ft²
3 bedroom terraced house for sale in West Cliffe, Lytham, FY8 — £425,000 • 3 bed • 1 bath • 886 ft²
3 bedroom terraced house for sale in 3 Hastings Place, Lytham, FY8 — £500,000 • 3 bed • 2 bath • 527 ft²
3 bedroom terraced house for sale in Queen Street, Lytham St. Annes, FY8 — £675,000 • 3 bed • 2 bath • 1858 ft²






























































































