**Standout Features:**
- 4-bedroom HMO property, newly refurbished to a high standard
- Ready for tenants with no HMO license required
- Expected rental return of £24,000 per year, offering a 12% gross yield
- Freehold ownership, chain-free, with good rental demand
- Located in a diverse urban area, with strong community amenities
**Summary:**
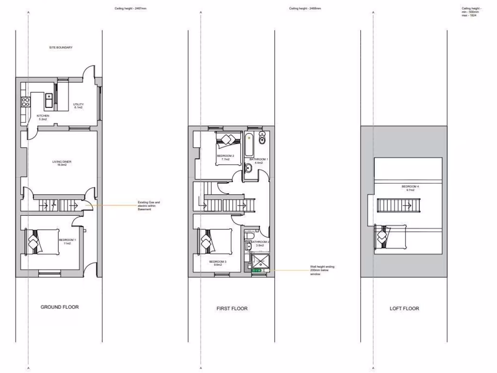
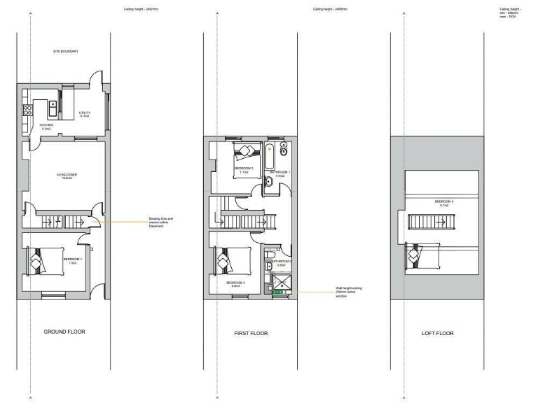
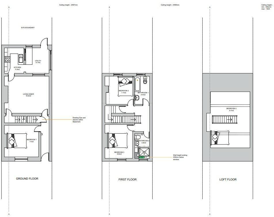
This beautifully refurbished 4-bedroom terraced property at 148 Agbrigg Road is an exceptional investment opportunity, ready for immediate rental. Boasting modern design elements, this freehold property offers two bathrooms, a utility room, and a cozy living space across three floors. With an impressive rental income potential of £2,000 per month and a gross yield of 12%, it’s perfect for investors looking to capitalize on the local rental market.
Situated in the vibrant WF1 postcode, this home benefits from proximity to various amenities, including restaurants, fitness centers, and transportation links. Although the area has a high crime rate and is classified as deprived, the neighborhood’s diversity and community spirit present opportunities for potential growth. With four bedrooms, all currently available for tenancy, this property is inviting for both families and investors alike. Don't miss out on securing a prime asset that’s ready to generate income; properties like this won’t be on the market for long!
4 bedroom terraced house for sale in Henry Street, Wakefield, West Yorkshire, WF2 — £200,000 • 4 bed • 3 bath • 894 ft²
4 bedroom terraced house for sale in Lincoln Street, Wakefield, West Yorkshire, WF2 — £214,000 • 4 bed • 1 bath • 594 ft²
4 bedroom end of terrace house for sale in Queen Street, Pontefract, West Yorkshire, WF8 — £180,000 • 4 bed • 2 bath • 1357 ft²
6 bedroom house of multiple occupation for sale in Princess Avenue, WF9 — £308,393 • 6 bed • 1 bath
5 bedroom terraced house for sale in Lincoln Street, Wakefield, West Yorkshire, WF2 — £220,000 • 5 bed • 1 bath • 902 ft²
2 bedroom end of terrace house for sale in Newland Street, Wakefield, WF1 — £115,000 • 2 bed • 1 bath • 614 ft²


















































































