Move-in ready four-bed with garage, summer house and convenient commuter links.
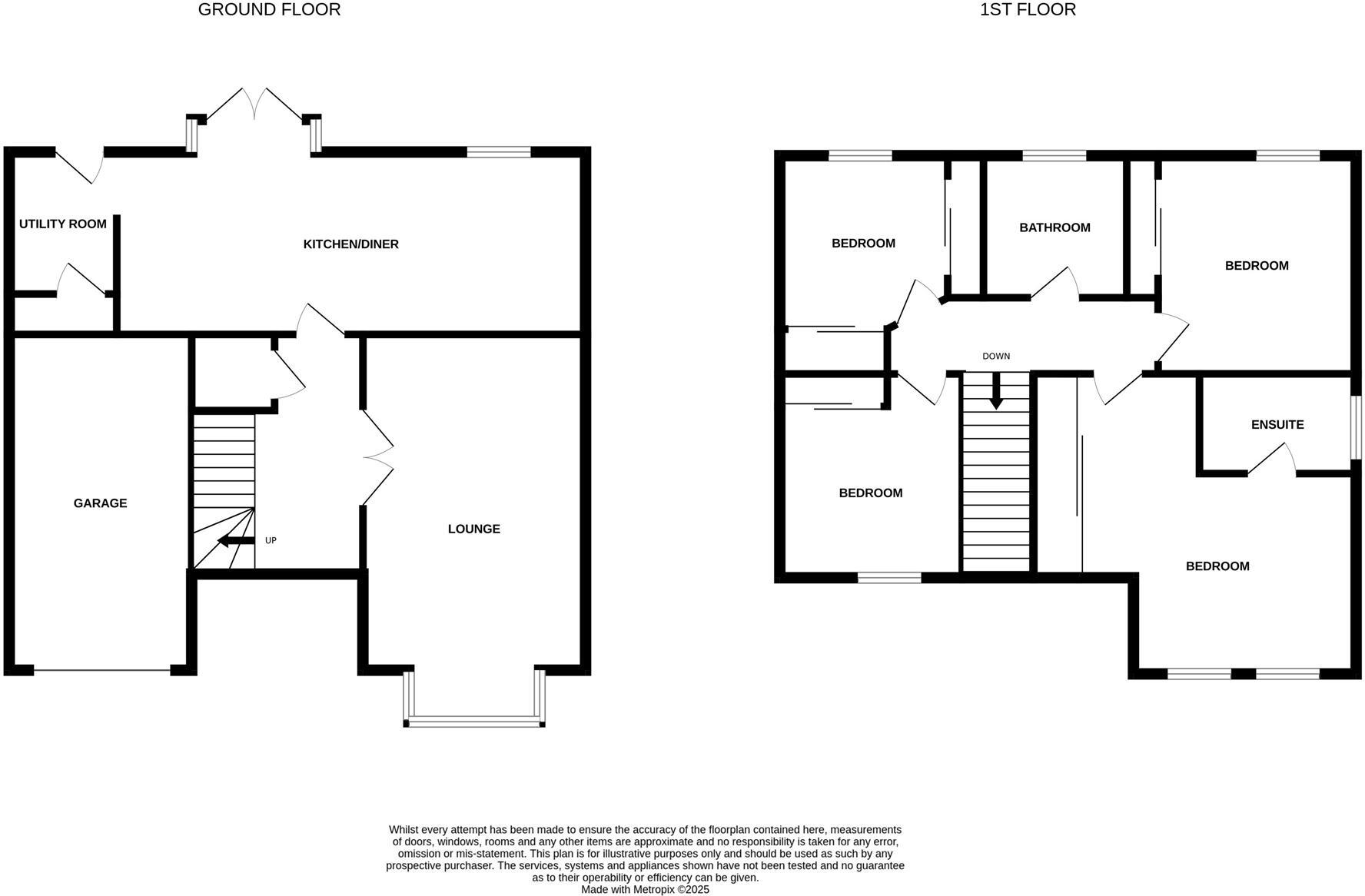
- Four bedrooms with principal en-suite
- Modern kitchen/dining with utility and bright layout
- Underfloor heating in bathroom, en-suite and cloakroom
- Larger-than-normal single garage and mono-block driveway parking
- Purpose-built summer house/office/workshop in rear garden
- Energy Efficiency Rating B and fast broadband/excellent mobile
- Overall property/plot described as small
- Local area shows high deprivation; Council Tax Band F is costly
A well-presented four-bedroom detached home in Rosyth, recently updated and ready to move into. The refurbished kitchen/dining room with adjoining utility creates a bright family hub, while the front box bay lounge offers a comfortable reception space. The principal bedroom includes an en-suite and there is a modern family bathroom plus a handy cloakroom on the ground floor.
Practical features include underfloor heating in the bathroom, en-suite and cloakroom, a larger-than-expected single garage, mono-block driveway parking and a generous summer house currently used as an office/workshop. The property has an Energy Efficiency Rating of B and benefits from excellent mobile signal and fast broadband — useful for commuters or home workers.
Buyers should note the property is described as overall small (footprint or plot), and it sits within an area with high measured deprivation — factors some purchasers will want to consider. Council Tax Band F is relatively expensive and will add to ongoing costs. The house is freehold and presented to move into, with many modern fittings included.
4 bedroom detached villa for sale in Jutland Street, Rosyth, KY11 — £315,000 • 4 bed • 3 bath • 938 ft²
4 bedroom detached house for sale in 54 Caledonia Court, Rosyth, Dunfermilne, KY11 2ZJ, KY11 — £325,000 • 4 bed • 2 bath • 1680 ft²
4 bedroom end of terrace house for sale in 33 Syme Place, Rosyth, KY11 2SQ, KY11 — £165,000 • 4 bed • 1 bath • 1345 ft²
3 bedroom semi-detached house for sale in Mossbank, Rosyth, Dunfermline, Fife, KY11 — £225,000 • 3 bed • 2 bath • 1264 ft²
3 bedroom terraced house for sale in Gillway, Rosyth, Dunfermline, Fife, KY11 — £175,000 • 3 bed • 1 bath • 933 ft²
4 bedroom end of terrace house for sale in 38 Camdean Crescent, Rosyth KY11 2TH, KY11 — £215,000 • 4 bed • 2 bath • 1560 ft²






































































































