Spacious plot with workshop and studio, ideal for family living.
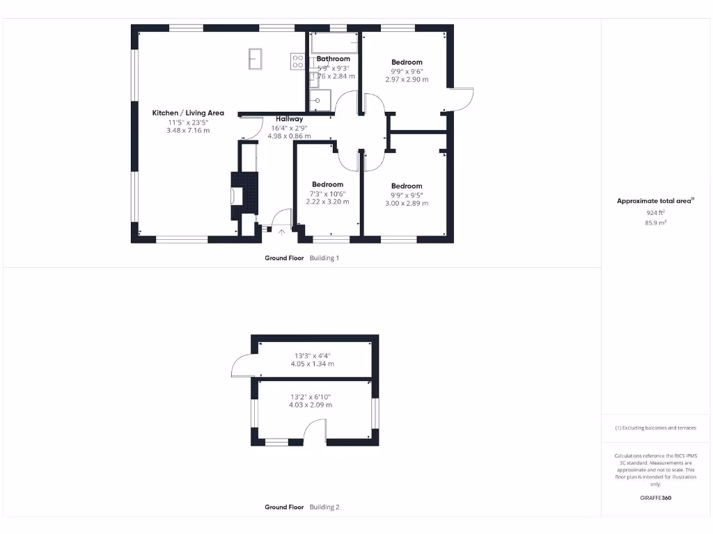
- Detached three-bedroom single-storey bungalow with coastal outlook
Set above Tobermory on the Isle of Mull, 3 St Marys is a detached three-bedroom bungalow on a generous, sloping plot with mature gardens and coastal views. The single-storey layout and triple-aspect living space create a bright, accessible home with a recent extension that provides workshop and studio space — useful for hobbies or occasional guest accommodation.
The plot offers clear potential: level parking for several cars, room for a detached garage or workshop, and private rear grounds that slope into a small wooded area. The property has practical services including mains water, electricity and drainage, oil central heating and excellent mobile signal, making it comfortable for year-round occupation.
Buyers should note material limitations: there is only one bathroom, broadband speeds are slow, tenure is unspecified, and the home sits within a very deprived wider area with above-average council tax. Access is via a shared private track. These factors alongside the single bathroom mean some buyers may wish to update services or add facilities to maximise the site’s potential.
Overall, this bungalow suits someone seeking a peaceful coastal home with outdoor space and scope to adapt or extend. It will appeal to families wanting single-floor living, creative buyers needing workshop or studio space, and purchasers prepared to trade modern connectivity for the Isle of Mull’s landscape and community lifestyle.
2 bedroom semi-detached house for sale in Rockfield Road, Tobermory, Isle of Mull, Argyll and Bute, PA75 — £165,000 • 2 bed • 1 bath • 816 ft²
3 bedroom house for sale in Dubh Choirean, Dervaig, PA75 — £330,000 • 3 bed • 1 bath • 1607 ft²
3 bedroom flat for sale in Creagan Park, Erray Road, Tobermory, Isle of Mull, PA75 — £185,000 • 3 bed • 1 bath • 744 ft²
3 bedroom semi-detached house for sale in 1 Rockfield Road, Tobermory, Isle Of Mull, PA75 6PN, PA75 — £150,000 • 3 bed • 1 bath • 980 ft²
6 bedroom detached house for sale in Fuaran, Raeric Road, Tobermory, Isle Of Mull, PA75 — £465,000 • 6 bed • 4 bath
3 bedroom detached house for sale in Beul An Atna, 11 West Street, Tobermory, Isle Of Mull, PA75 — £225,000 • 3 bed • 1 bath • 913 ft²


























































































