Rare freehold commercial unit with high ceilings and strong street presence.
Freehold Grade II listed former Women’s Institute building
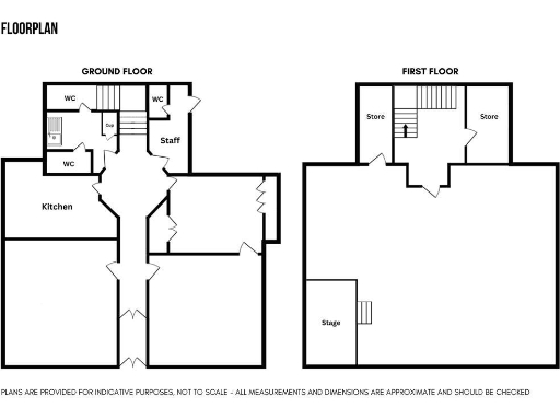
A rare freehold commercial building in central Falmouth, this Grade II listed former Women’s Institute offers circa 1,936 sq ft over multiple floors. The property’s Georgian façade, high ceilings and large arched windows give strong period character and good street presence, suitable for retail, catering, office or community use (subject to consents).
The building is offered with full vacant possession and sits close to town centre amenities and public car parks, making it convenient for customers and staff. Practical positives include no flood risk, excellent mobile signal and a compact footprint that is easy to manage.
Buyers should note the listed status will complicate alterations and may restrict change-of-use or refurbishment works; listed-consent and planning enquiries are essential. The interior is a fixer-upper and will require investment to modernise; broadband speeds are very slow, which may affect some business uses. Overall this is a character-rich, high-potential town-centre asset suited to an investor or operator prepared for listed-building constraints.
High street retail property for sale in Market Street, Falmouth, Cornwall, TR11 — £750,000 • 1 bed • 1 bath • 14319 ft²
3 bedroom mixed use property for sale in Webber Hill, Falmouth, Cornwall, TR11 — £300,000 • 3 bed • 3 bath • 1625 ft²
High street retail property for sale in , 20 Church Street, Falmouth, TR11 — £375,000 • 1 bed • 1 bath • 2537 ft²
Office for sale in Arwenack Avenue, Falmouth, Cornwall, TR11 3JJ, TR11 — £500,000 • 1 bed • 1 bath • 1324 ft²
High street retail property for sale in Market Street, Falmouth, Cornwall, TR11 — £210,000 • 1 bed • 1 bath • 592 ft²
2 bedroom terraced house for sale in Falmouth, TR11 — £275,000 • 2 bed • 2 bath • 1227 ft²














































