EX2 9BJ - Plot for sale in POTENTIAL DEVELOPMENT SITE, Exeter, Devon,…

View on Property Piper

Plot for sale in POTENTIAL DEVELOPMENT SITE, Exeter, Devon, EX2

Summary - POTENTIAL DEVELOPMENT SITE, Exeter, Devon, EX2 EX2 9BJ

1 bed 1 bath Plot

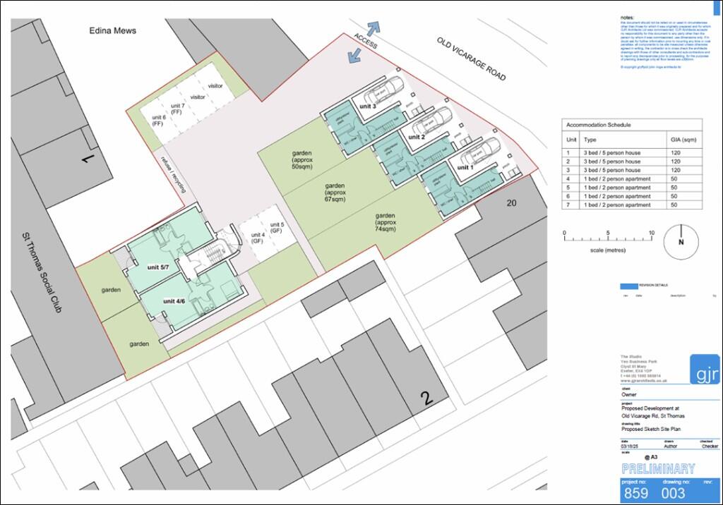
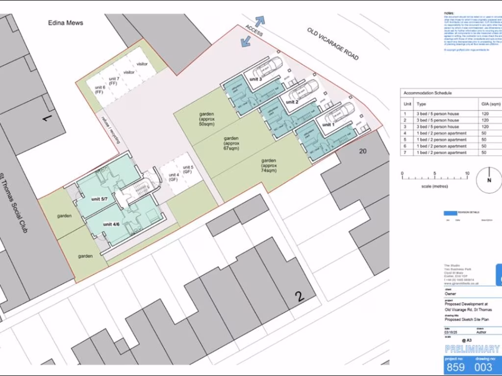
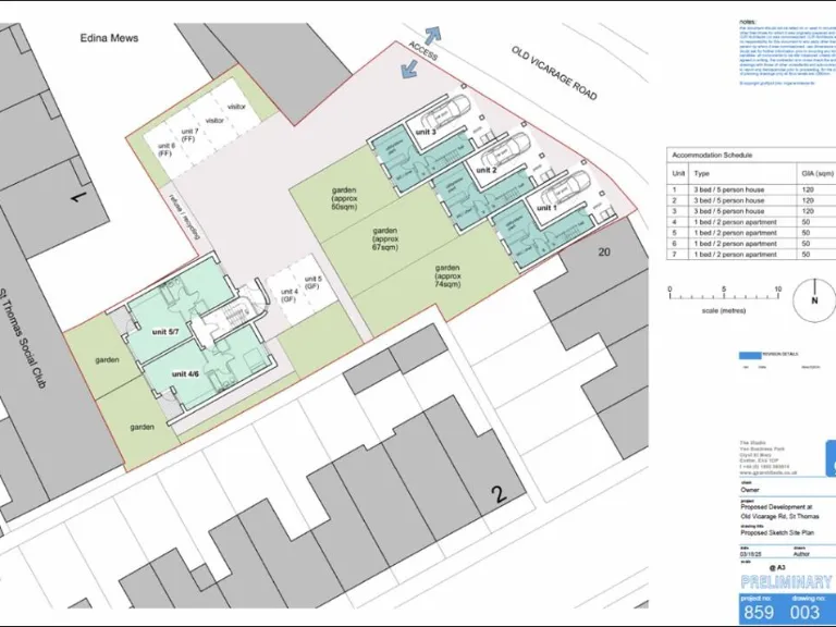
Freehold plot c.0.26 acres (approx. 11,326 sq ft)
A rare freehold parcel of c.0.26 acres in central St Thomas, Exeter, offered with a guide price of £260,000. The site is currently a hardstanding public car park producing income and sits between residential terraces and mixed commercial/residential buildings, with frontage onto Old Vicarage Road. A March 2025 pre-application response from Exeter City Council indicated residential use could be acceptable subject to full proposals and a Flood Risk Assessment.

The vendors considered a scheme of three 3-storey, 3-bed townhouses and four 1-bed apartments; no planning permission has been granted. The site lies in Flood Zone 3, so any residential scheme will need careful design (parking/planting/ground levels) and a Flood Risk Assessment. Utilities availability and capacity have not been confirmed — purchasers must verify services before offer.

This plot will suit developers or investors able to progress a planning application or explore commercial alternatives. Strengths include a sizeable central footprint, existing rental income from parking, fast broadband and excellent mobile signal, and proximity to local amenities and schools. Material drawbacks are the absence of planning approval, flood risk constraints, high local crime levels, and potential remediation or groundworks associated with the existing hardstanding surface.

Offers are invited unconditional (subject to contract) from the guide price. Interested parties should allow for planning costs, design work, a Flood Risk Assessment and enquiries into services and local constraints when assessing viability.

Property Details

Brochure Descriptions

Image Descriptions

Textual Property Features

Detected Visual Features

Nearby Schools

Nearest Bars And Restaurants

,,,,}

Nearest General Shops

,,}

Nearest Grocery shops

,,}

Nearest Supermarkets

,,}

Nearest Religious buildings

,,}

Nearest Medical buildings

,,,}

Nearest Airports

}

Nearest Leisure Facilities

,,,,}

Nearest Tourist attractions

,,}

Nearest Train stations

,,,,}

Nearest Bus stations and stops

,,,,}

Nearest Hotels

,,}

Tags

Local Market Stats

AirBnB Data

Similar Properties

Meta

High Res Images

Compatible Images

Low res Images

Thumbnails

Raw Images