**Standout Features:**
- Planning permission for two detached houses with three bedrooms each
- Modern open plan kitchen/diner and spacious lounge
- Off-road parking for two vehicles per property
- Proximity to local amenities and parks
- Guide price: £90,000
**Summary:**
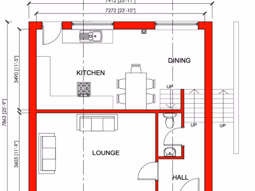
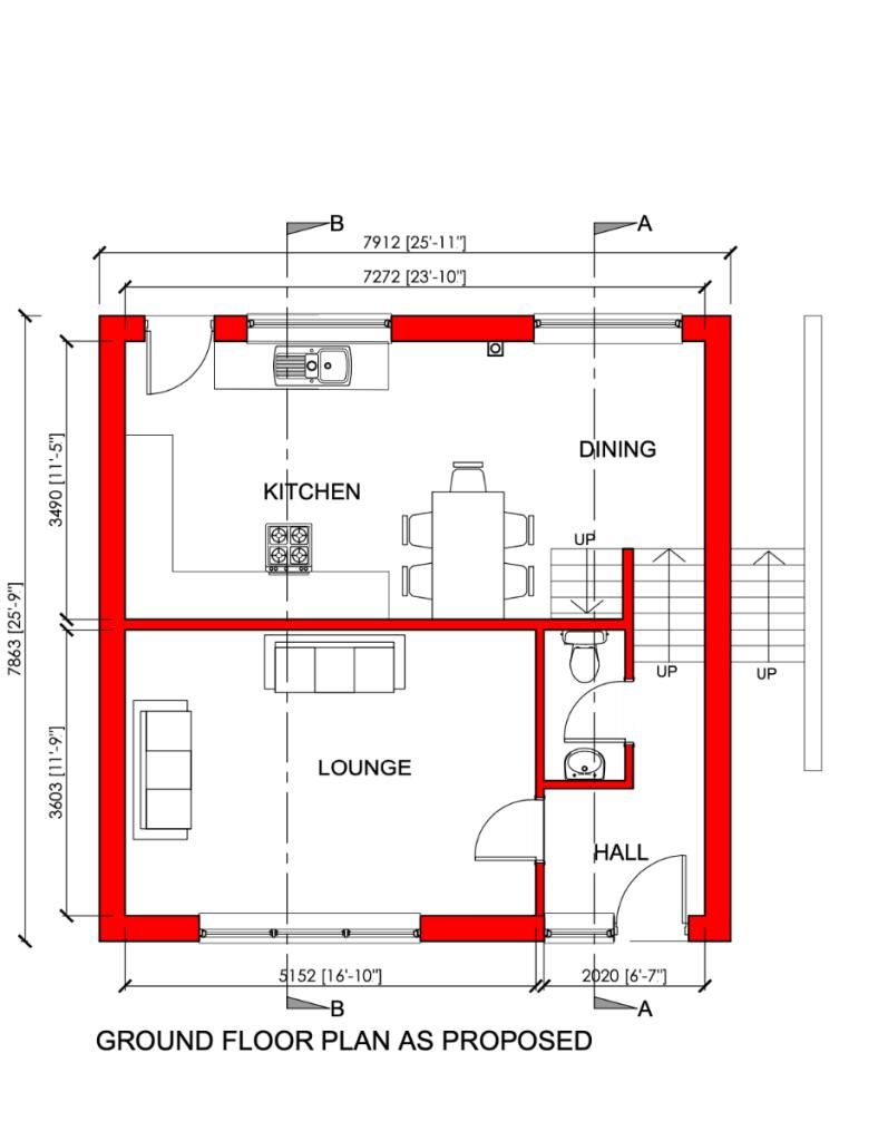
Introducing an exceptional development opportunity in Tredegar, this plot of land comes with approved planning permission for two modern detached homes, each designed to offer three bedrooms. The thoughtfully designed layout includes a welcoming entrance hall, a large lounge, and an open plan kitchen/diner, making it ideal for family living. On the first floor, enjoy a family bathroom and three bedrooms, two of which are generously sized doubles.
The property benefits from off-road parking for two cars and promises potential for landscaped gardens, providing a perfect retreat. Located close to Bedwelty Park and within easy reach of local amenities, this site is poised for those looking to create spacious family residences or lucrative rental investments. Moreover, strong connectivity via the A465 and A470 enhances its appeal for future residents.
With a guide price of £90,000 and limited availability, this is a unique chance for keen investors or families seeking to build their dream homes. Don't miss out on this rare opportunity!
Land for sale in Queen Victoria Street, Tredegar, Blaenau Gwent, NP22 3QA, NP22 — £90,000 • 1 bed • 1 bath • 6926 ft²
Land for sale in Park Hill, Tredegar, NP22 — £200,000 • 4 bed • 2 bath
Land for sale in Land Adjacent to Fairfields,Tredegar, NP22 — £250,000 • 1 bed • 1 bath
Land for sale in Plot opposite 26-33 Pen Y Graig Terrace, Brynithel, Abertillery, NP13 — £75,000 • 4 bed • 1 bath
Land for sale in Land Adjacent To, 2 Penllwyn Avenue, NP12 — £60,000 • 2 bed • 1 bath • 555 ft²
Land for sale in High Street, Blaina, NP13 — £400,000 • 1 bed • 1 bath














































