Well-located family home with garage and clear upgrade potential.
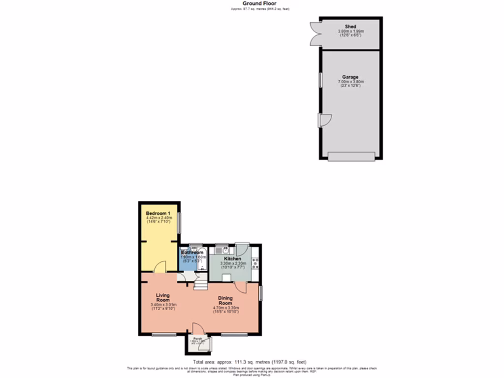
Detached 3-bedroom dormer bungalow on a decent plot with garden
Set on a quiet residential road in Milnrow, this detached three-bedroom dormer bungalow offers flexible living across ground and first-floor accommodation. The layout suits families or those looking to downsize without compromising on space: a ground-floor bedroom and a light-filled living/dining area create an accessible principal living zone, while two first-floor bedrooms provide privacy.
Externally the house sits on a decent plot with off-street parking to the side and a detached garage with electricity to the rear, currently split and partly used as storage. The generous garden offers space for children, pets, or a future landscaping project. The property is freehold and falls within several Good-rated school catchment areas, an attractive practical benefit for families.
The bungalow does need modernization in places: fixtures and finishes are neutral but dated, and the EPC rating is E. Double glazing is already installed (pre-2002) and heating is mains gas with a boiler and radiators; these features reduce immediate major works but updating kitchens, bathroom and overall decorating will significantly enhance comfort and value. Overall this is a solid, well-located home with clear potential for improvement and investment in finish.
Practical details: single family bathroom, average overall size (approximately 1,197 sq ft), and low local crime levels. Broadband and mobile signal are strong and local amenities, transport links and open countryside are easily accessible.
2 bedroom semi-detached bungalow for sale in Ladyhouse Close, Milnrow, OL16 4EB, OL16 — £240,000 • 2 bed • 1 bath • 1014 ft²
2 bedroom semi-detached bungalow for sale in LADYHOUSE CLOSE, Milnrow, Rochdale, OL16 4EB, OL16 — £240,000 • 2 bed • 1 bath • 859 ft²
2 bedroom semi-detached bungalow for sale in Bowland Grove, Rochdale, OL16 — £235,000 • 2 bed • 1 bath • 771 ft²
3 bedroom semi-detached house for sale in Mendip Drive, Milnrow OL16 3HT, OL16 — £259,950 • 3 bed • 1 bath • 915 ft²
3 bedroom semi-detached bungalow for sale in Newfield View, Milnrow, OL16 3DS , OL16 — £260,000 • 3 bed • 2 bath • 1369 ft²
2 bedroom bungalow for sale in Woodlands Road, Milnrow, Rochdale, Greater Manchester, OL16 — £250,000 • 2 bed • 2 bath • 1172 ft²


















































































