Modern, low-maintenance home with NHBC warranty and fast broadband.
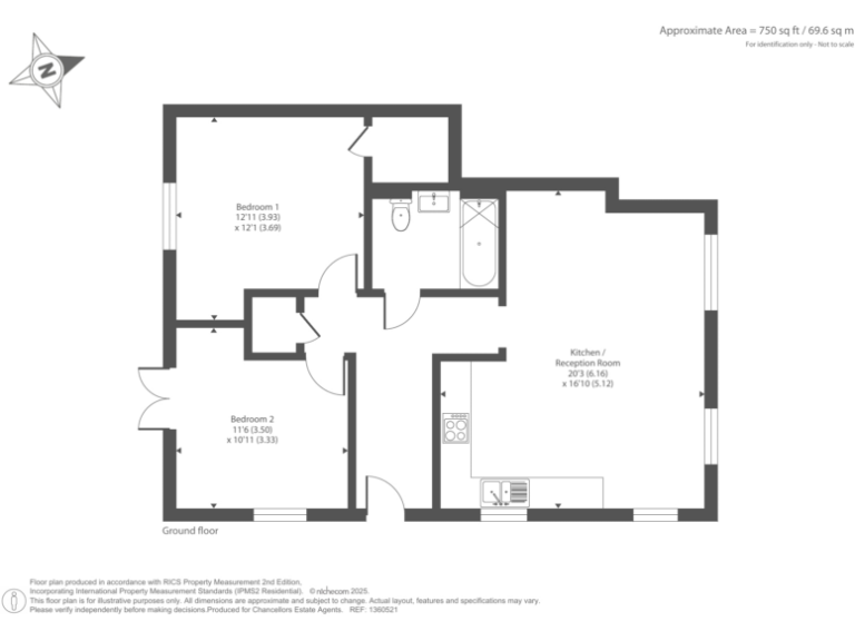
Ground-floor two-bedroom apartment with private garden access
A light-filled ground-floor apartment built in 2017 by Bloor Homes, offering a practical two-bedroom layout and direct garden access. The open-plan living, kitchen and dining space opens through French doors onto a private garden — a rare find for a flat and useful for small families, first-time buyers or downsizers.
The property is chain-free and still benefits from the NHBC warranty and a long lease (125 years from 2016, 116 years remaining), giving purchasers certainty on construction cover and tenure. At about 750 sq ft, the accommodation feels deceptively spacious and sits within a very affluent, rural white-collar area, approximately a 1.1 mile walk to Thame town centre and its amenities.
Practical points to note: the home is leasehold, and buyers should confirm any service charges or ground rent liabilities before proceeding. Crime levels are average and council tax is described as affordable. Broadband speeds and mobile signal are strong, making the flat suitable for remote working and modern living.
Overall this is a straightforward, modern ground-floor apartment with outdoor space and nearby good-rated schools — a sensible choice for first-time buyers or those seeking a low-maintenance home close to Thame.
2 bedroom ground floor flat for sale in Park Court, Thame, OX9 — £249,900 • 2 bed • 1 bath • 460 ft²
2 bedroom ground floor flat for sale in Weavers Branch, Thame, OX9 — £350,000 • 2 bed • 1 bath • 517 ft²
2 bedroom ground floor flat for sale in Old Union Way, Thame, OX9 — £285,000 • 2 bed • 1 bath • 690 ft²
2 bedroom flat for sale in Abingdon Close, Thame, OX9 — £260,000 • 2 bed • 1 bath • 645 ft²
2 bedroom ground floor flat for sale in Angus Court, Thame, OX9 — £265,000 • 2 bed • 2 bath • 498 ft²
2 bedroom ground floor flat for sale in Phoenix Court, Thame, Oxfordshire, OX9 — £280,000 • 2 bed • 2 bath • 616 ft²


































































































