Immediate rental income with planned two-flat development opportunity nearby.
Turnkey five-room HMO with shared kitchen/diner and two bathrooms
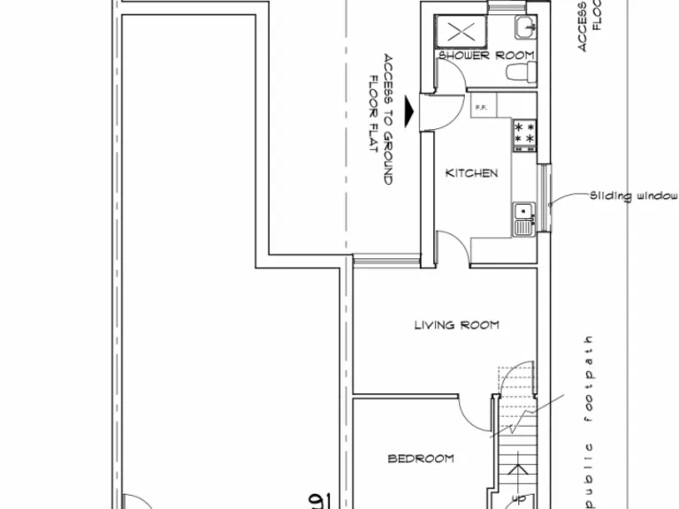
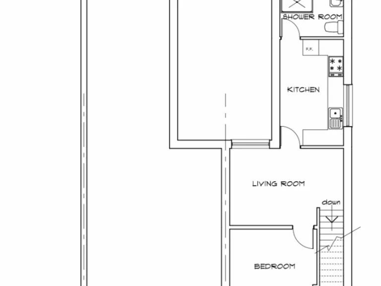
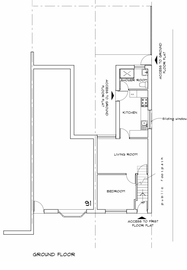
A rare pairing of immediate income and short-term development upside in central Kettering. The end-of-terrace house has been fully refurbished and configured as a turnkey five-room HMO with a shared kitchen/diner and two bathrooms, providing ready cashflow for a hands-off letting strategy.
Adjacent is a small freehold corner plot with a prepared scheme for two self-contained one-bedroom apartments. The proposed designs respect local scale and include provision for bin/bike storage and a shared garden; conversion is subject to planning consent (purchaser to verify status).
This opportunity suits an investor seeking blended returns: the existing HMO delivers instant rental income while the plot offers near-term uplift if planning is secured. Note the location sits within a deprived area with high local crime statistics and a small plot size; buyers should factor these socio-economic considerations and potential security or management needs into operating costs.
The property benefits from fast broadband, excellent mobile signal and proximity to Kettering town centre, shops and transport links. External wear and the plot’s limited footprint mean practical constraints for extension—assessors and planners should be consulted before committing to a development programme.
4 bedroom terraced house for sale in Leicester Street, Kettering, NN16 — £240,000 • 4 bed • 4 bath • 1077 ft²
2 bedroom terraced house for sale in Princes Street, Kettering, NN16 — £160,000 • 2 bed • 1 bath • 568 ft²
2 bedroom end of terrace house for sale in Oakley Street, Kettering, NN16 — £115,000 • 2 bed • 1 bath • 980 ft²
4 bedroom block of apartments for sale in Regent Street, Kettering, NN16 — £325,000 • 4 bed • 3 bath • 3409 ft²
3 bedroom end of terrace house for sale in Bath Road, Kettering, NN16 — £400,000 • 3 bed • 1 bath • 970 ft²
3 bedroom terraced house for sale in Montagu Street, Kettering, NN16 — £200,000 • 3 bed • 3 bath • 700 ft²






















