New village-centre home with sustainable fittings and strong commuter links.
Open-plan kitchen/diner with French doors to large garden
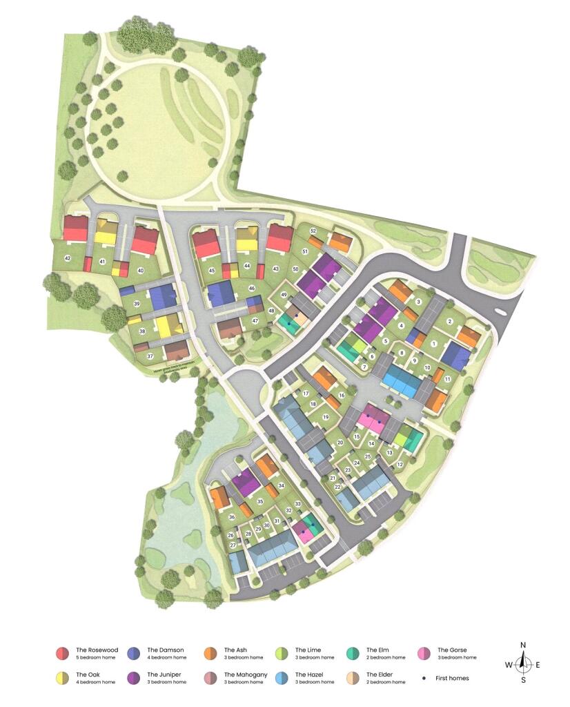
Plot 9, The Hazel is a newly built three-bedroom terraced home in the heart of Leigh Sinton’s new village-centre development, The Hamlet. The house offers an open-plan kitchen/dining room with French doors onto a large garden, a separate sitting room, downstairs cloakroom, and useful understairs storage for everyday family life.
Sustainable features include low-energy lighting, an EV charging point and optional solar panels to reduce running costs. The principal bedroom benefits from a private en-suite shower room; two further bedrooms share a well-appointed family bathroom. The property is freehold and sized at approximately 863 sq ft, finished with a modern brick façade and double glazing.
Leigh Sinton provides a strong village community with a popular primary school, local shop, pub and regular bus links; Worcester and Malvern are within easy driving distance and commuter routes to the M5 are convenient. Completion is scheduled for 2027, so buyers should note this is a new-build reservation opportunity rather than an immediate move-in.
Considerations: the home is an average-sized terraced property, so living space is compact compared with larger family homes. Solar panels are optional rather than standard, and council tax banding is not yet confirmed. Mobile signal is average, though broadband speeds are reported as fast.
3 bedroom terraced house for sale in Leigh Sinton, Malvern, Worcestershire, WR13 — £350,000 • 3 bed • 1 bath • 863 ft²
3 bedroom detached house for sale in Leigh Sinton, Malvern, Worcestershire, WR13 — £425,000 • 3 bed • 2 bath • 1032 ft²
3 bedroom detached house for sale in Leigh Sinton, Malvern, Worcestershire, WR13 — £500,000 • 3 bed • 2 bath • 1396 ft²
2 bedroom semi-detached house for sale in Leigh Sinton, Malvern, Worcestershire, WR13 — £325,000 • 2 bed • 2 bath • 854 ft²
3 bedroom semi-detached house for sale in Leigh Sinton, Malvern, Worcestershire, WR13 — £375,000 • 3 bed • 2 bath • 910 ft²
2 bedroom semi-detached house for sale in Leadon Way,
Ledbury,
Herefordshire,
HR8 2GU, HR8 — £260,000 • 2 bed • 1 bath














































