Bright living and open-plan dining close to Mitcham Eastfields station.
Large 1,265 sq ft multi-storey terraced house
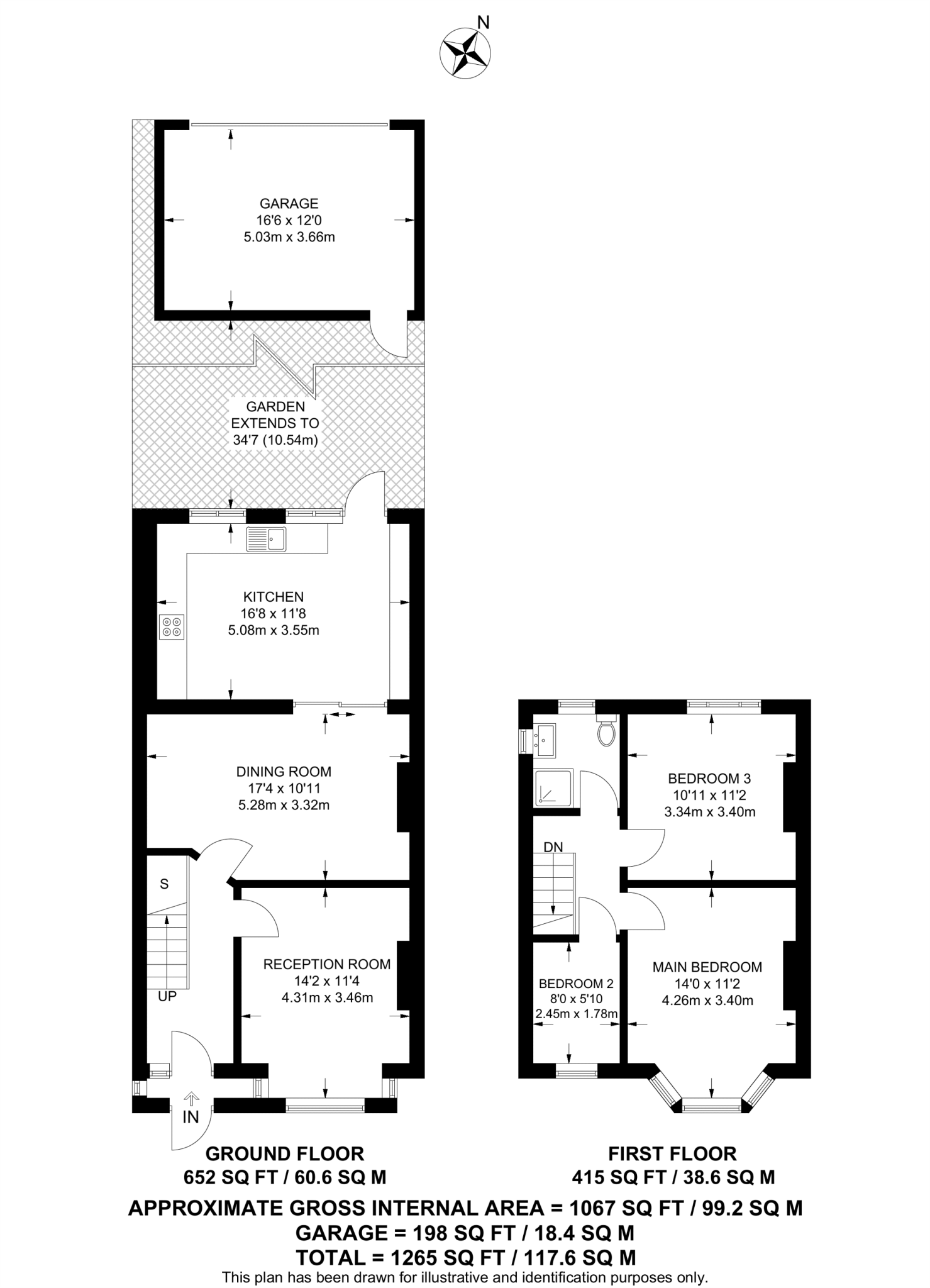
Set across multiple levels, this roomy three-bedroom terraced home offers generous living measured at approximately 1,265 sq ft. A bright reception room and an open-plan kitchen-dining area create practical family living and direct access to a quiet, private rear garden. The layout suits everyday life and has potential to reconfigure or extend subject to planning.
Located a short walk from Mitcham Eastfields station, the house provides straightforward rail links into central London, plus excellent mobile signal and fast broadband for remote working. Local amenities, green space such as Figges Marsh, and a range of primary and secondary schools nearby make the location convenient for families.
Built in the mid-20th century with solid brick walls and double glazing, the property is offered freehold and presents some maintenance and upgrade opportunities. There is a single bathroom for three double bedrooms and signs of minor wear internally; insulation levels are unknown and may require improvement to boost energy efficiency.
Prospective buyers should note the small plot size and the area’s higher recorded crime levels when assessing suitability. For families and investors seeking space close to transport links, the house combines immediate liveability with sensible scope for refurbishment to add value.
3 bedroom terraced house for sale in Graham Road, Mitcham, CR4 — £750,000 • 3 bed • 2 bath • 1482 ft²
3 bedroom flat for sale in Bramcote Avenue, Mitcham, CR4 — £450,000 • 3 bed • 1 bath • 782 ft²
3 bedroom terraced house for sale in Eldertree Way, Mitcham, CR4 — £450,000 • 3 bed • 1 bath • 987 ft²
3 bedroom terraced house for sale in Manor Road, Mitcham, CR4 — £500,000 • 3 bed • 1 bath • 872 ft²
3 bedroom end of terrace house for sale in Hallowell Close, Mitcham, CR4 — £550,000 • 3 bed • 2 bath • 1506 ft²
3 bedroom end of terrace house for sale in Bond Road, Mitcham, CR4 — £725,000 • 3 bed • 1 bath • 1518 ft²














































































