Chain-free two-bedroom home with garden and strong commuter links.
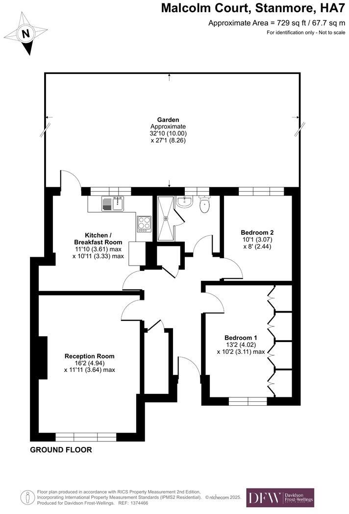
Ground-floor two-bedroom maisonette with private rear garden
Chain-free sale with ~130 years remaining on lease
Service charge approx. £1,150 pa; ground rent nil
Requires full modernisation throughout (cosmetic and fixtures)
Average-sized rooms; compact/medium overall living space
Double glazing installed post-2002; mains gas heating with boiler
Walking distance to Stanmore station and nearby shops
No flooding risk; crime level average
Set on the ground floor of a mid-20th-century terrace in a quiet cul-de-sac, this two-bedroom maisonette offers a private rear garden and chain-free sale. Rooms are average in size and the layout suits a first home or buy-to-let. Double glazing and mains gas central heating are already in place.
The property requires full cosmetic modernisation throughout — dated carpets, wallpaper and kitchen/bathroom fittings — which presents an opportunity to add value through refurbishment. The long lease (approximately 130 years), nil ground rent and a modest service charge make ownership straightforward.
Location is a practical selling point: local shops and Stanmore station are within walking distance for commuters, while good local schools add family appeal. Overall this is a sensible starter property or a renovation project for an investor seeking rental income or capital uplift.
2 bedroom maisonette for sale in Merrion Avenue, Stanmore, HA7 — £395,000 • 2 bed • 1 bath • 803 ft²
2 bedroom apartment for sale in Malcolm Court, Stanmore, HA7 — £350,000 • 2 bed • 1 bath • 754 ft²
2 bedroom flat for sale in Springfield Close, Stanmore, HA7 — £375,000 • 2 bed • 1 bath • 626 ft²
2 bedroom semi-detached house for sale in Morecambe Gardens, Stanmore, Middlesex, HA7 — £495,000 • 2 bed • 2 bath • 744 ft²
2 bedroom maisonette for sale in Elm Park, Stanmore, HA7 — £450,000 • 2 bed • 1 bath • 808 ft²
2 bedroom maisonette for sale in Hill Close, Stanmore, HA7 — £400,000 • 2 bed • 1 bath • 752 ft²










































