Affordable 1-bed attic flat with renovation potential and low running costs.
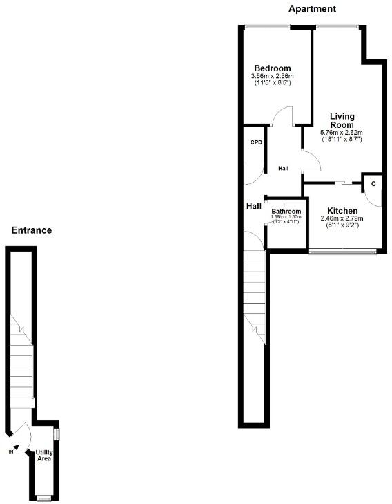
- One double bedroom attic flat, 581 sq ft
- Freehold tenure, low running costs (very cheap council tax)
- Gas central heating and double glazing already installed
- Shared garden and shared driveway; on-street parking available
- Requires renovation throughout; price reflects condition
- Very deprived local area — consider long-term location risks
- Fast broadband and excellent mobile signal
- Good transport links to Kilmarnock, Cumnock and Glasgow
This attic one-bedroom flat sits on the first floor of a Victorian semi and is offered as a freehold opportunity in Auchinleck. The layout provides a living room, fitted kitchen, double bedroom and bathroom across an average-sized 581 sq ft; gas central heating and double glazing are already in place. Practical extras include a shared garden and shared driveway, with on-street parking available.
The property needs renovation throughout—upgrading has been reflected in the advertised price—so it suits a buyer prepared to invest time and budget to modernise. Fast broadband and excellent mobile signal make it practical for working from home, while very low council tax helps running costs. The EPC is D.
Location benefits include local shops, a supermarket, pubs and leisure facilities in Auchinleck, with larger amenities in nearby Cumnock and Kilmarnock. Regular bus and rail links and road connections to the A77/M77 give straightforward access to Glasgow and the wider area.
This is a practical, lower-cost entry to ownership for a first-time buyer, downsizer or investor willing to take on renovation. Be aware the area is marked as very deprived, so buyers should factor in longer-term neighbourhood considerations alongside the low purchase price and refurbishment potential.
3 bedroom flat for sale in Main Street, KA18 — £54,950 • 3 bed • 1 bath • 599 ft²
1 bedroom flat for sale in 131A Main Street, Auchinleck, KA18 2AF, KA18 — £20,000 • 1 bed • 1 bath
1 bedroom bungalow for sale in Auchinleck, Cumnock, Auchinleck, KA18 — £49,000 • 1 bed • 1 bath
1 bedroom flat for sale in King Street, Newmilns, East Ayrshire, KA16 — £35,000 • 1 bed • 1 bath • 436 ft²
3 bedroom detached bungalow for sale in Dippol Crescent, Auchinleck, KA18 — £130,000 • 3 bed • 1 bath
1 bedroom flat for sale in East Main Street, Darvel, KA17 — £34,500 • 1 bed • 1 bath • 680 ft²






































