**Standout Features:**
- Four double bedrooms
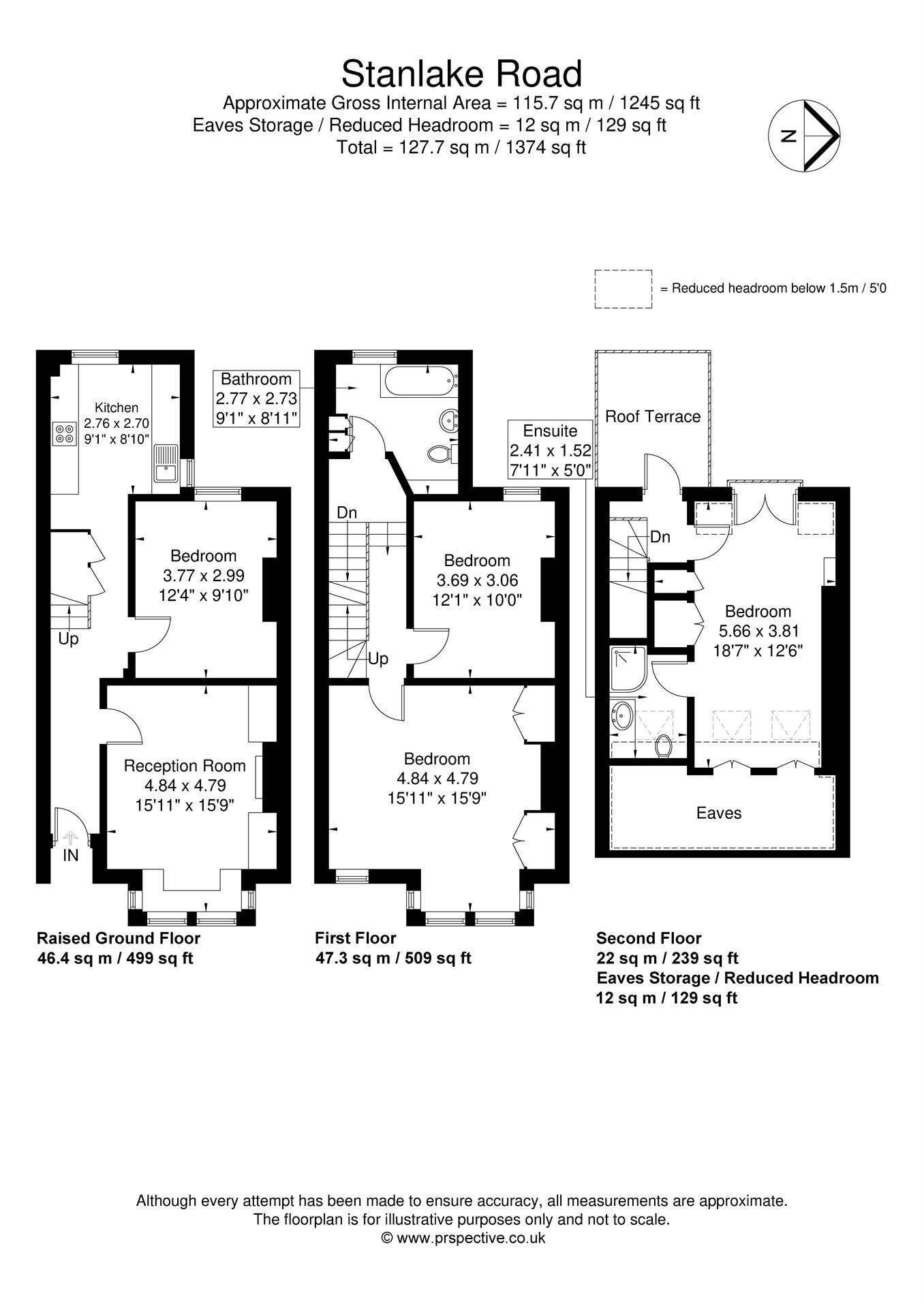
- Arranged over three floors with a total of 1,200 sq.ft of living space
- Private west-facing roof terrace
- Located near outstanding schools and excellent transport links
- Freehold property status
**Notable Considerations:**
- High crime rate in the area
- Requires thorough due diligence, especially regarding services and insulation
- Offered via Modern Auction with buyer's fees involved
Welcome to this elegant Edwardian upper maisonette, featuring a spacious layout of four double bedrooms and two bathrooms, perfect for families or investors. Spread across three floors, this charming residence boasts high ceilings and a bright ambiance, complemented by a superb west-facing roof terrace—ideal for enjoying sunsets or al fresco dining. The property benefits from its prime location near St. Stephen's CofE Primary School, which has an Ofsted rating of 'Outstanding', making it perfect for families. Enjoy the vibrant Shepherd's Bush area, close to trendy cafés, bars, and Westfield London for all your shopping needs.
Convenient transport links—including Shepherd's Bush (Central & Overground) and Shepherd's Bush Market (Circle and Hammersmith & City lines)—are just a short walk away, providing easy access across London. While the property does carry a high crime rate and some potential maintenance concerns noted in its age and structure, it offers an exciting opportunity for flexible renovations to truly make this home your own. Don’t miss out on this rare auction opportunity—schedule a viewing today and envision the potential this home holds!
4 bedroom semi-detached house for sale in St Stephens Avenue, Shepherds Bush, W12 — £1,500,000 • 4 bed • 2 bath • 1300 ft²
4 bedroom terraced house for sale in Westway, Shepherds Bush, London W12 7AP, W12 — £800,000 • 4 bed • 3 bath • 1557 ft²
4 bedroom terraced house for sale in Wormholt Road, London, W12 — £1,750,000 • 4 bed • 3 bath • 2851 ft²
2 bedroom flat for sale in Hetley Road, Shepherd's Bush, London, W12 — £450,000 • 2 bed • 1 bath • 690 ft²
3 bedroom apartment for sale in Adelaide Grove, London, W12 — £800,000 • 3 bed • 2 bath • 1106 ft²
2 bedroom flat for sale in Queensdale Crescent, London, W11, W11 — £360,000 • 2 bed • 1 bath • 768 ft²


































































