**Standout Features:**
- Attractive Grade II listed village inn with historical charm
- Recently underwent complete refurbishment
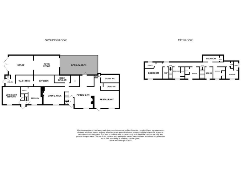
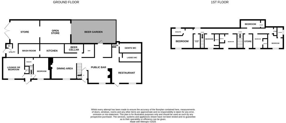
- Public bar, dining room, and separate restaurant
- Five letting bedrooms plus 2-3 bedroom owner accommodation
- Large plot size of 0.16 acres including parking and beer garden
- Extremely large layout with 22 rooms and a total size of 6,970 sq ft
- Low crime rate and good local amenities
**Potential Concerns:**
- Listed status may present renovation challenges
- Current trading hours and room availability limits potential income
This charming Grade II listed inn, nestled in a picturesque rural village, offers an exceptional opportunity for both investors and hospitality enthusiasts. The property has been expertly refurbished, highlighting its traditional features while providing modern comforts. With spacious public areas, including a rustic bar and cozy dining spaces, alongside five letting bedrooms and comfortable owner accommodation, this venue stands poised for continued success.
Situated on a generous 0.16-acre plot, the property includes customer parking and a beer garden, perfect for al fresco socializing. Despite its current operational limits, a couple could easily reinstate the original trading hours and room offerings to boost profitability. This inviting inn not only embodies a piece of local history but also presents a unique investment potential in an appealing community. Don't miss your chance to capitalize on this successful trading concern in an age-old village setting—properties like this are rare to find!
5 bedroom detached house for sale in EX19 — £375,000 • 5 bed • 3 bath
Pub for sale in Lymington Arms, Lama Cross, Winkleigh, Devon, EX18 — £395,000 • 4 bed • 1 bath • 3500 ft²
Pub for sale in EX19 — £375,000 • 2 bed • 1 bath
Pub for sale in EX20 — £1,400,000 • 10 bed • 1 bath
Pub for sale in Kings Arms Inn, Fore Street, Winkleigh, Devon, EX19 — £525,000 • 1 bed • 1 bath
12 bedroom detached house for sale in Hartland, Bideford, EX39 — £600,000 • 12 bed • 13 bath • 8366 ft²


































































