Modern, move-in-ready house with garden and parking near top schools and stations.
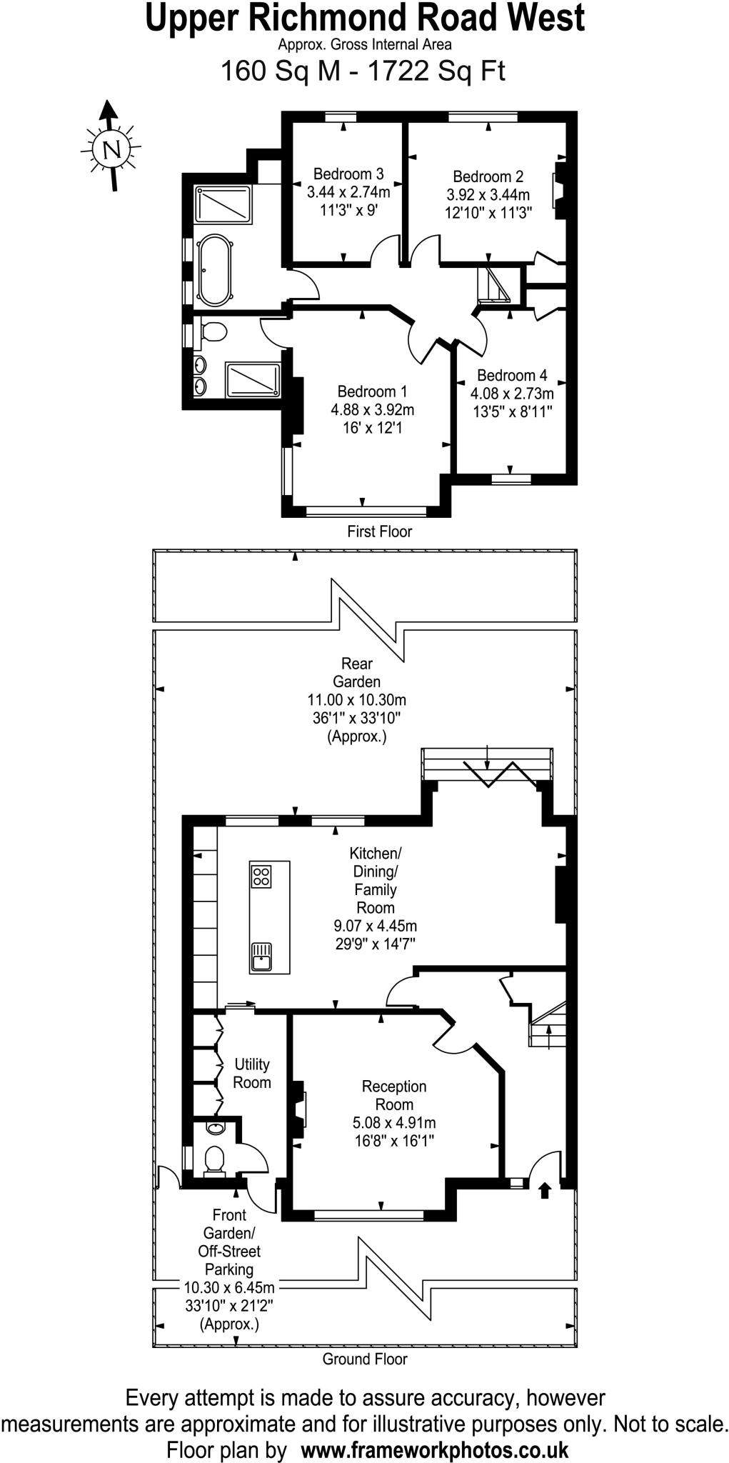
- Four double bedrooms, flexible family accommodation
- Circa 1,700 sq ft of living space across two floors
- Newly renovated and presented in show‑home condition
- Open-plan kitchen/dining/family room with garden access
- Decent private rear garden and off-street parking
- Loft conversion possible, subject to usual consents
- Listing data shows one bathroom; please confirm exact count
- Solid brick walls assumed uninsulated; council tax quite expensive
A spacious four-bedroom semi-detached family home on the Sheen/Richmond border, freshly modernised and presented in show-home condition. Generous, well-lit reception rooms and a contemporary open-plan kitchen/dining/family area open directly onto a landscaped rear garden, creating excellent indoor–outdoor flow for family life and entertaining.
The house offers substantial accommodation across two floors (circa 1,700 sq ft) with off-street parking and a decent plot. Convenient local transport links (North Sheen and Mortlake stations nearby), excellent local schools and fast broadband make this a practical choice for professionals and families.
There are sensible improvement opportunities: the loft could be converted, subject to usual consents, to add more space and value. Buyers should note some practical considerations recorded with the property: the listing data shows only one bathroom despite descriptive references to an ensuite and family bathroom (please confirm), the original solid brick walls are assumed to lack cavity insulation, and council tax is described as quite expensive. These points may affect running costs and refurbishment plans.
Overall this property suits a family seeking ready-to-move-in, modernised accommodation in a desirable Richmond location, with clear potential to add value through permitted loft works and any planned energy-efficiency upgrades.
4 bedroom semi-detached house for sale in St. Leonards Road, East Sheen, SW14 — £1,350,000 • 4 bed • 2 bath • 1604 ft²
4 bedroom semi-detached house for sale in The Byeway, East Sheen, SW14 — £1,300,000 • 4 bed • 2 bath • 1522 ft²
4 bedroom terraced house for sale in Grosvenor Gardens, SW14 — £1,500,000 • 4 bed • 2 bath • 1905 ft²
4 bedroom semi-detached house for sale in Richmond Park Road, London, SW14 8LA, SW14 — £2,050,000 • 4 bed • 2 bath • 2000 ft²
4 bedroom semi-detached house for sale in Parkfield Avenue, SW14 , SW14 — £1,500,000 • 4 bed • 2 bath • 1522 ft²
4 bedroom terraced house for sale in Bexhill Road, East Sheen, SW14 — £1,350,000 • 4 bed • 2 bath • 1704 ft²






















































































