Private front and rear gardens with direct sitting-room access
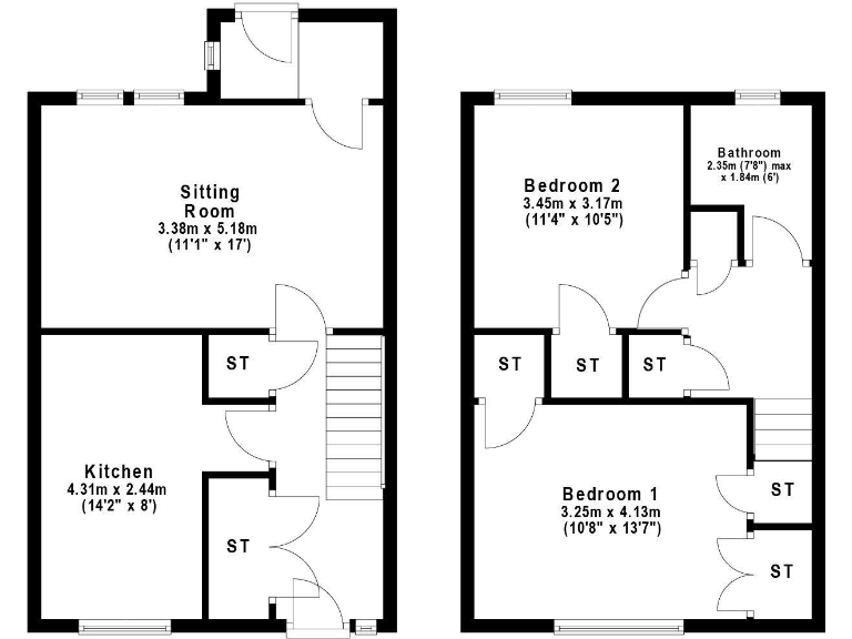
Sitting room over 17 feet, spacious layout for family living
Two double bedrooms with built-in storage
Re-roofed in 2024; gas central heating and double glazing
Dining-sized modern kitchen with integrated oven and good light
Unrestricted on-street parking; excellent mobile and fast broadband
Area classified as very deprived / challenged community — affects resale
Some external upkeep noted despite recent roof replacement
Set in a small cul-de-sac in Falkirk, this two-bedroom mid-terraced villa offers generous internal space (approx. 915 sq ft) and private front and rear gardens. The sitting room extends over 17 feet with twin windows and direct garden access, while the dining-sized kitchen provides integrated appliances and good natural light. Practical features include gas central heating, double glazing and a recent re-roofing (2024).
The layout is traditional and straightforward: broad reception hallway with storage, two double bedrooms with fitted storage and a refitted bathroom with electric shower. On-street unrestricted parking serves the property and excellent mobile signal and fast broadband make it suitable for home working. Local amenities, Hallglen Primary School and Falkirk town centre are within easy reach.
Buyers should note the local area is classified as very deprived and as a "challenged" community; this may affect resale dynamics and local services. There is some external upkeep noted as a potential requirement despite the recent re-roofing. Tenure is freehold and council tax is described as cheap.
This property will suit first-time buyers or young families seeking a roomy starter home with outdoor space and low running-cost features. Early viewing is recommended to appreciate the internal proportions and garden potential.
2 bedroom villa for sale in Caledonian Court, Falkirk, FK2 — £167,000 • 2 bed • 1 bath • 807 ft²
2 bedroom villa for sale in Glencairn Street, Camelon, FK1 — £109,500 • 2 bed • 1 bath • 807 ft²
2 bedroom terraced house for sale in Strachan Street, Falkirk, Stirlingshire, FK1 — £130,000 • 2 bed • 1 bath • 679 ft²
2 bedroom villa for sale in Manor Wynd, Maddiston, FK2 — £167,000 • 2 bed • 1 bath • 689 ft²
2 bedroom semi-detached villa for sale in Abbotsford Street, Falkirk, FK2 — £109,000 • 2 bed • 1 bath • 861 ft²
3 bedroom villa for sale in Montgomery Street, Falkirk, FK2 — £125,000 • 3 bed • 1 bath • 969 ft²






























