PH39 4NS - 3 bedroom detached house for sale in Ranfurly, Back of Kepp…

View on Property Piper

3 bedroom detached house for sale in Ranfurly, Back of Keppoch, Arisaig, PH39 4NS, PH39

Summary - RANFURLY, BACK OF KEPPOCH, ARISAIG PH39 4NS

3 bed 2 bath Detached

**Standout Features:**
- 3 double bedrooms, one with en-suite and utility room
- Stunning countryside and sea views, including the Isle of Skye
- Cozy lounge/diner with living-flame gas fire
- Enclosed garden grounds, private parking, and garden shed
- In very good order with double glazing and oil-fired central heating
- Ideal for family living, a holiday retreat, or investment in a self-catering market

**Potential Downsides:**
- EPC rating: E 39 (may require energy efficiency upgrades)
- Broadband speeds are slow, which may affect connectivity for remote workers
- Some aspects of maintenance may be needed over time, given the property’s age

**Summary:**
Discover the charming Ranfurly, a delightful 3-bedroom detached property nestled in the serene semi-rural enclave of Back of Keppoch, Arisaig. This well-maintained home features expansive views over the lush countryside, all the way to the serene sea and Isle of Skye, creating a picturesque backdrop for your everyday life. The interior showcases a cozy lounge/diner with a living-flame gas fire, a dining kitchen with solid oak cabinetry, and three spacious double bedrooms, including one with an en-suite shower and utility room for added convenience.

With a generously enclosed garden, private parking, and proximity to picturesque walking paths and coastline, this property offers a wonderful blend of comfort and natural beauty. Perfect as a permanent family home, a quaint holiday retreat, or a lucrative investment opportunity in a thriving market, Ranfurly invites you to envision your ideal lifestyle in this idyllic location. Don't miss your chance to own this exclusive piece of tranquility—properties in this coveted area won't last long!

Property Details

Brochure Descriptions

Image Descriptions

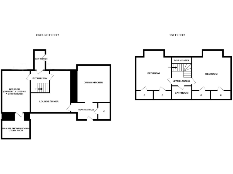
Floorplan Description

Rooms

Textual Property Features

Detected Visual Features

Nearest Bars And Restaurants

,,,,}

Nearest General Shops

,,}

Nearest Grocery shops

,,}

Nearest Supermarkets

}

Nearest Religious buildings

,,}

Nearest Medical buildings

,,,}

Nearest Leisure Facilities

,,,,}

Nearest Tourist attractions

,,}

Nearest Train stations

,,,,}

Nearest Bus stations and stops

,,,,}

Nearest Hotels

,,}

Tags

Local Market Stats

Similar Properties

Meta

High Res Images

Compatible Images

Low res Images

Thumbnails

Raw Images

High Res Floorplan Images

Compatible Floorplan Images

Low res Floorplan Images

FloorplanImages Thumbnail

Raw Floorplan Images