Well-connected three-bedroom home with garage and private garden.
Close to Metrolink and motorway links, ideal for commuters
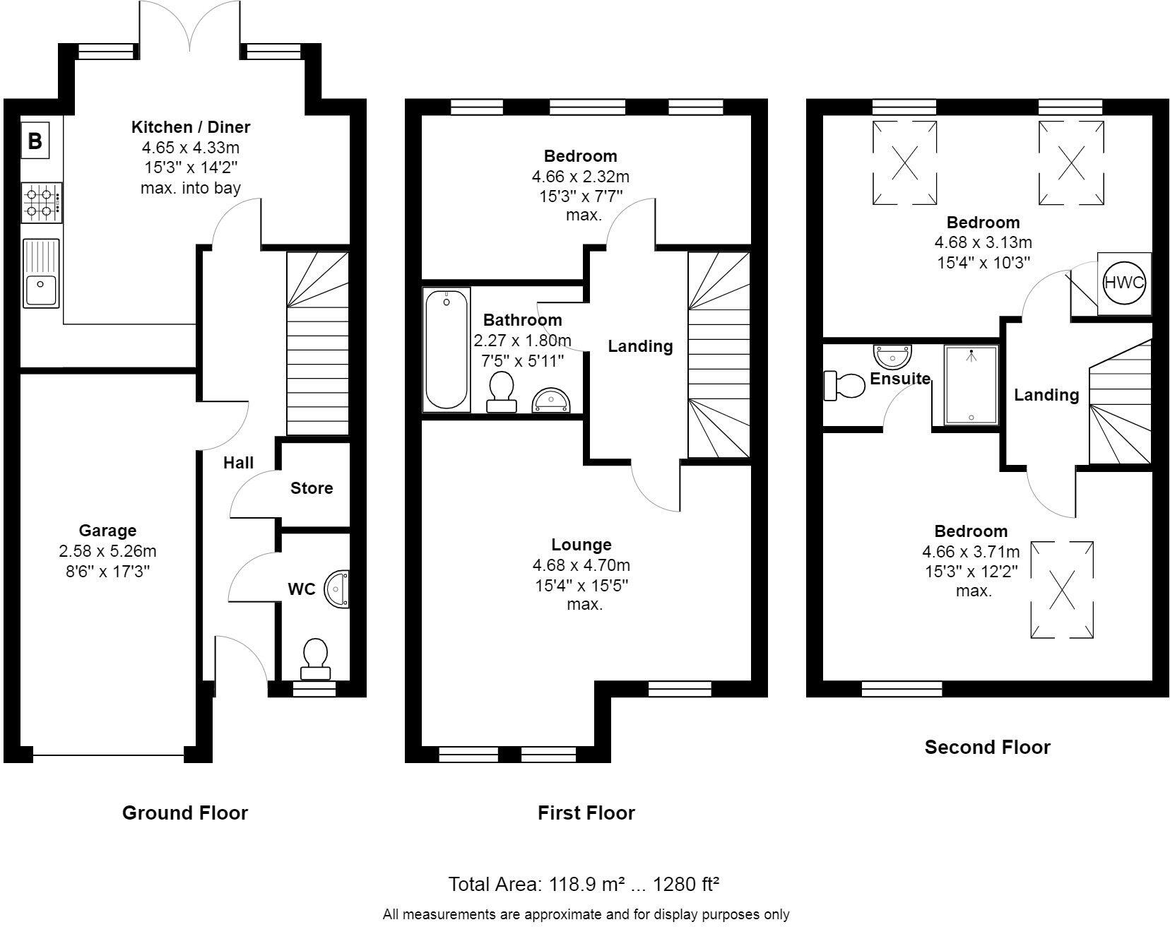
Large master bedroom with en-suite bathroom
Modern fitted kitchen with appliances and patio doors
Garage plus off-road parking for convenience
Private rear garden / courtyard, usable but plot described as small
Several rooms are average in size, not overly spacious
Freehold tenure, UPVC double glazing, gas central heating
Local schools mixed; nearby secondary has an Inadequate Ofsted rating
This three-bedroom semi-detached home on Dunmaston Avenue is arranged over three floors and suits a family seeking convenient commuter links and practical living space. The property offers a modern fitted kitchen with integrated appliances, a spacious lounge, and a large master bedroom with en-suite. Off-road parking and a garage add practicality for a household with one or two cars.
A private rear courtyard provides an outdoor space for children and pets, and the overall internal area is generous for the price bracket. The house benefits from UPVC double glazing, gas central heating, fast broadband and very low local crime — practical comfort and connectivity for everyday family life.
Buyers should note the plot is described as small despite a usable rear garden, and several rooms are average in size rather than generously proportioned. Local schooling is mixed: several good primary and secondary options nearby, but one listed secondary has a lower Ofsted rating, which may influence some purchasers.
Overall this is a modern, well-located family home with immediate commuter advantages, useful storage and a garage; it suits buyers seeking a move-in-ready property with some scope to personalise rather than a full renovation project.
3 bedroom semi-detached house for sale in Gawsworth Close, Timperley, Altrincham, WA15 — £350,000 • 3 bed • 1 bath • 1048 ft²
4 bedroom town house for sale in Welman Way, Altrincham, WA15 — £565,000 • 4 bed • 2 bath • 1344 ft²
3 bedroom semi-detached house for sale in Crofton Avenue, Timperley, Altrincham, Greater Manchester, WA15 — £400,000 • 3 bed • 1 bath • 996 ft²
5 bedroom semi-detached house for sale in Clay Lane, Hale, WA15 — £700,000 • 5 bed • 2 bath • 1681 ft²
3 bedroom detached house for sale in Tarbolton Crescent, Altrincham, WA15 — £320,000 • 3 bed • 2 bath • 921 ft²
2 bedroom semi-detached house for sale in Sheldrake Road, Broadheath, Altrincham, WA14 — £300,000 • 2 bed • 1 bath • 631 ft²






































































































