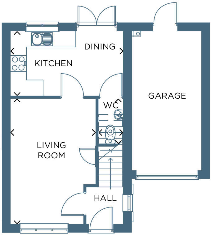
Compact modern home with garage and garden ideal for families and first-time buyers.
- Three bedrooms with master en-suite
- Contemporary kitchen-diner with French doors to garden
- Integral garage plus block-paved private driveway
- Front and rear turf, full fencing, outside tap included
- New-build with 10-year warranty (Gleeson/NHBC)
- Compact overall footprint (~686 sq ft), small rooms
- Small plot and modest garden compared with larger family homes
- Area classed as deprived; local crime rate average
This three-bedroom detached Kildare home at Castledene offers a compact, contemporary layout aimed at families and first-time buyers. The ground floor features a living room that opens to a modern kitchen-diner with French doors to the garden, while upstairs provides a master bedroom with en-suite plus two further bedrooms and a family bathroom.
The plot includes a block-paved private drive, integral garage, and enclosed front and rear lawns with full fencing and outside tap. Homes are built to a high specification from known brands and come with a 10-year warranty (first 2 years with Gleeson, remaining 8 years with NHBC). Some images and upgrades shown are optional and come at extra cost.
Rooms and overall footprint are modest (total c. 686 sq ft) and best suited to buyers seeking low-maintenance, new-build accommodation rather than large family living. The development is conveniently placed for local schools, supermarkets and road links to Newcastle and Durham, but it sits in a relatively deprived area with average local crime statistics.
Buyers should note the small plot size and compact room proportions before viewing. Council tax banding and some specification choices remain to be confirmed — check which optional upgrades are included at your chosen build stage.
3 bedroom detached house for sale in Gloucester Road,
Consett,
County Durham,
DH8 7LN, DH8 — £189,995 • 3 bed • 1 bath • 589 ft²
3 bedroom detached house for sale in Gloucester Road,
Consett,
County Durham,
DH8 7LN, DH8 — £188,995 • 3 bed • 1 bath • 603 ft²
4 bedroom detached house for sale in Gloucester Road,
Consett,
County Durham,
DH8 7LN, DH8 — £249,995 • 4 bed • 1 bath • 958 ft²
3 bedroom semi-detached house for sale in Gloucester Road,
Consett,
County Durham,
DH8 7LN, DH8 — £192,995 • 3 bed • 1 bath • 682 ft²
3 bedroom detached house for sale in Gloucester Road,
Consett,
County Durham,
DH8 7LN, DH8 — £207,995 • 3 bed • 1 bath • 632 ft²
4 bedroom detached house for sale in Delves Lane,
Consett,
DH8 7DD, DH8 — £310,000 • 4 bed • 1 bath • 787 ft²






























































