Bright three-storey family home with west-facing garden and study.
Views over Willow Pond from the cul-de-sac plot
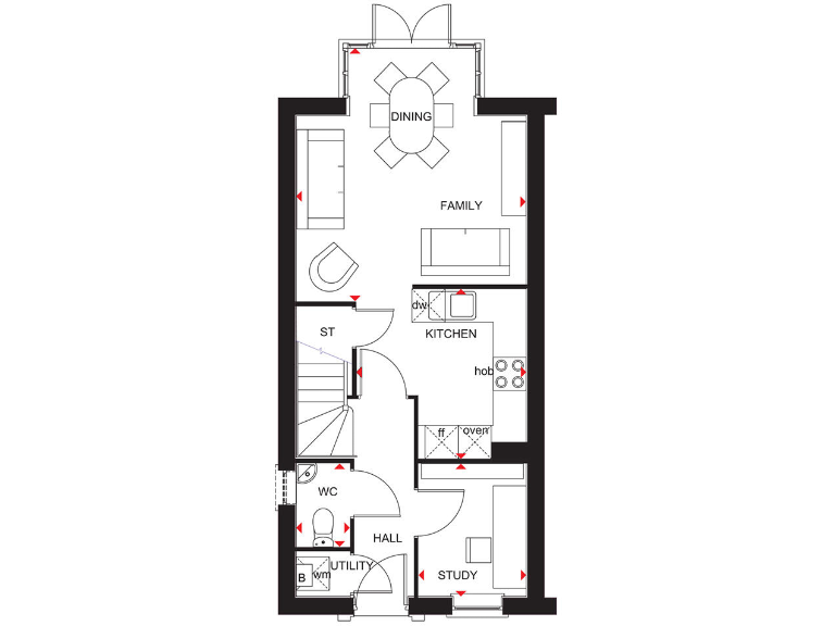
Set on a private cul-de-sac overlooking the Willow Pond, this three-bedroom new-build Greenwood offers bright, flexible family living across three levels. The ground floor open-plan kitchen and dining room lead through French doors to a west-facing garden, creating an easy indoor–outdoor flow for evenings and weekend play. A study on the ground floor provides a practical home-office or homework space.
Upstairs, a second lounge and the main bedroom with en suite give parents a quieter retreat, while two double bedrooms and a family bathroom occupy the top floor. The house is built to energy-efficient standards and includes two off-street parking spaces — practical for a busy household.
The setting is peaceful and very low-crime, with fast broadband, excellent mobile signal and good local schools nearby, making this an attractive choice for family buyers. Part of a larger new development with green spaces and play areas, the property benefits from pleasant pond views and a sizeable plot.
Buyers should note this is a new-build home with completion details and tenure not specified in the information provided. A show home is available for viewing, and eligible key workers are offered a deposit contribution of £15,000 (terms apply).
3 bedroom semi-detached house for sale in The Willows,
Musselburgh Way, Bourne, Lincolnshire, PE10 0XY, PE10 — £317,995 • 3 bed • 1 bath • 852 ft²
3 bedroom end of terrace house for sale in The Willows,
Musselburgh Way, Bourne, Lincolnshire, PE10 0XY, PE10 — £316,995 • 3 bed • 1 bath • 852 ft²
4 bedroom detached house for sale in The Willows,
Musselburgh Way, Bourne, Lincolnshire, PE10 0XY, PE10 — £454,995 • 4 bed • 1 bath • 1302 ft²
3 bedroom semi-detached house for sale in The Willows,
Musselburgh Way, Bourne, Lincolnshire, PE10 0XY, PE10 — £254,995 • 3 bed • 1 bath • 700 ft²
3 bedroom end of terrace house for sale in The Willows,
Musselburgh Way, Bourne, Lincolnshire, PE10 0XY, PE10 — £249,995 • 3 bed • 1 bath • 700 ft²
3 bedroom semi-detached house for sale in The Willows,
Musselburgh Way, Bourne, Lincolnshire, PE10 0XY, PE10 — £254,995 • 3 bed • 1 bath • 700 ft²














































