Secure, spacious family home with conversion potential close to Fulham Broadway.
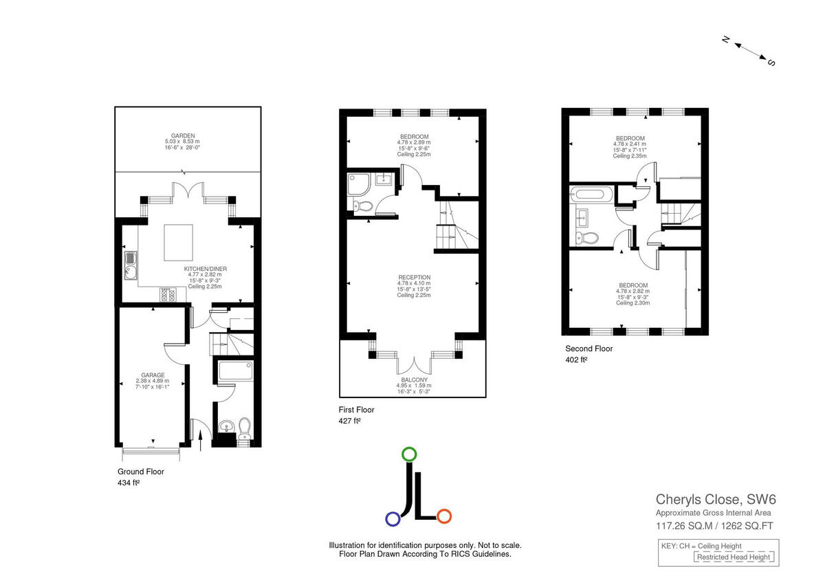
Three bedrooms and two bathrooms across three floors
Large living area: 1,262 sq ft total internal space
Granted planning permission to convert integral garage
Private west-facing garden larger than typical for area
Off-street parking for two cars within gated development
Freehold tenure; built 1985, some updating may be needed
Council tax level described as quite expensive
Small plot size; double-glazing install date unknown
Set within a secure gated development moments from Fulham Broadway, this three-bedroom mid-terrace offers over 1,200 sq ft of light-filled living across three floors. The current layout delivers a modern open-plan kitchen/dining area, a good-sized private west-facing garden and a bright reception room — a practical family-orientated arrangement in a highly connected part of Fulham.
A key advantage is the granted planning permission to convert the integral garage into additional living space, enabling an enlarged kitchen/living area with direct garden access. There is off-street parking for two cars, gated security and access to well-maintained communal grounds — rare extras in central London locations and useful for families or buyers seeking rental appeal.
Buyers should note some practical considerations: the property was built in 1985 and the double glazing install date is unknown, so further updating may be required depending on buyer preference. Council tax is described as quite expensive and the plot is relatively small compared with larger suburban gardens. Crime is average for the area.
Overall, this freehold home suits a family seeking a secure, well-connected Fulham base with clear potential to increase living space via the approved garage conversion. The location — under ten minutes to Fulham Broadway station and close to strong primary and secondary schools — reinforces its appeal for everyday living and longer-term value.
3 bedroom terraced house for sale in Harwood Road, Fulham, SW6 — £1,875,000 • 3 bed • 3 bath • 1663 ft²
4 bedroom house for sale in Walham Yard, Fulham, South West London, SW6, United Kingdom, SW6 — £1,895,000 • 4 bed • 3 bath • 1872 ft²
1 bedroom terraced house for sale in Gowan Avenue, London, SW6 — £695,000 • 1 bed • 1 bath • 778 ft²
4 bedroom house for sale in Haldane Road, Fulham, SW6 — £1,100,000 • 4 bed • 3 bath • 1092 ft²
4 bedroom terraced house for sale in Harwood Terrace, London, SW6 — £1,295,000 • 4 bed • 3 bath • 1755 ft²
3 bedroom terraced house for sale in Weavers Terrace, Micklethwaite Road, London, SW6 — £1,150,000 • 3 bed • 2 bath • 1180 ft²






































































