Ready-to-move-in 3-bed semi with driveway, ensuite and sunny garden — near schools.
Open-plan kitchen/diner with French doors to sunny garden
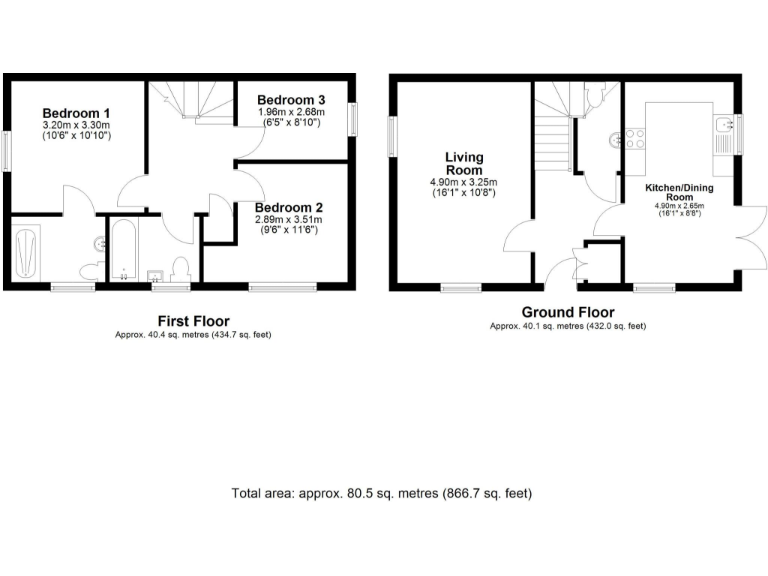
This modern three-bedroom semi-detached home on Boyd Road (built 2018) suits a first-time buyer seeking ready-to-move-in accommodation. The ground floor offers an open-plan kitchen/diner with French doors spilling onto a sunny, well-kept garden, plus a generous living room with dual-aspect light. High-spec appliances and contemporary finishes reduce immediate renovation needs.
Upstairs provides three good bedrooms, including an ensuite to the principal, and a family bathroom. Practical extras include off-street driveway parking for two cars, mains gas central heating, and fast broadband with excellent mobile signal — useful for home working and everyday life.
Notable points to consider: the development currently has a management charge overseen by the developer, but a final service charge and management arrangements are not yet fixed. The plot is modest and the overall floor area is around 866 sq ft, so buyers should check storage and layout against their needs. Council tax is described as affordable and there is low local crime and no flood risk.
Positioned in Westbury, the house benefits from nearby schools (rated Good), supermarkets, and rail links to Bath and London. For buyers wanting a modern, low-maintenance starter home within reach of countryside walks and local amenities, this property presents practical, turn-key potential with one material caveat around future service charges.
3 bedroom semi-detached house for sale in Baynton Close, Westbury, BA13 — £275,000 • 3 bed • 2 bath • 865 ft²
3 bedroom semi-detached house for sale in Cheviot Road, Westbury, BA13 — £335,000 • 3 bed • 2 bath • 1235 ft²
2 bedroom terraced house for sale in Brouncker Road, Westbury, BA13 — £240,000 • 2 bed • 1 bath • 673 ft²
3 bedroom semi-detached house for sale in Swallows Rise, Westbury, BA13 — £265,000 • 3 bed • 2 bath • 912 ft²
2 bedroom semi-detached house for sale in Athelney Avenue, Westbury, BA13 — £245,000 • 2 bed • 2 bath • 751 ft²
3 bedroom semi-detached house for sale in Freestone Grove, BA13 — £300,000 • 3 bed • 3 bath • 1105 ft²






























































































