Two-bedroom let with steady income and private garden potential.
Long-term tenant in place producing £7,200 gross annually
This two-bedroom terraced house in De Walden Square is offered as a buy-to-let with a long-term tenant in place, producing a current gross income of £7,200 per year. At the asking price of £117,600 the property returns an approximate gross yield of 6.1%, making it a straightforward addition for a lettings portfolio or a hands-on investor.
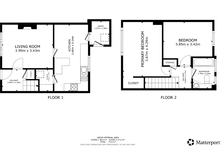
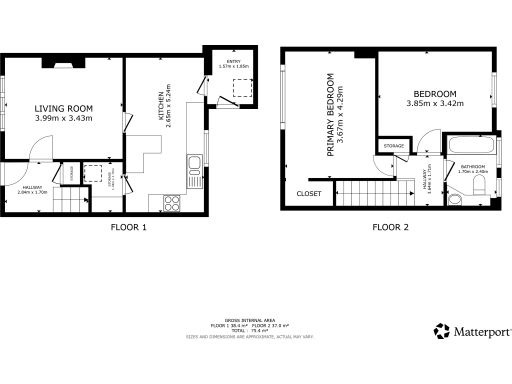
The home offers an expansive lounge, fitted kitchen with dining space, a three-piece bathroom and a private rear garden. Accommodation sits over two floors and totals about 850 sq ft. On-street parking is available; the plot is small and maintenance requirements are likely to be typical of mid-20th-century brick-built stock.
Notable positives include established rental income, tenant stability, fast broadband and excellent mobile signal. Material factors to consider: the area has above-average crime levels and is relatively deprived, the plot is small, and images describe some external damp/unkempt elements — the property will likely benefit from refurbishment and ongoing maintenance. A Buyers Premium applies to secure purchase and the tenancy is understood to be ongoing.
This listing suits investors seeking immediate income and long-term capital growth through improvement. Developers and refurbishment specialists may also find opportunity to add value, but purchasers should allow for upgrade costs and check tenancy documentation and the Let Property Pack for detailed investment figures.
2 bedroom terraced house for sale in Chester Square, Lynemouth NE61 — £63,000 • 2 bed • 1 bath • 730 ft²
3 bedroom terraced house for sale in Springwell Drive, Ellington NE61 — £68,000 • 3 bed • 1 bath • 786 ft²
3 bedroom terraced house for sale in Pretoria Avenue, Morpeth, NE61 — £140,000 • 3 bed • 1 bath • 969 ft²
2 bedroom terraced house for sale in Disraeli Street, Blyth, Northumberland, NE24 — £70,000 • 2 bed • 1 bath • 732 ft²
3 bedroom end of terrace house for sale in Pont Street, Ashington, NE63 — £82,000 • 3 bed • 1 bath • 1152 ft²
2 bedroom terraced house for sale in Chase Mews, Blyth, NE24 — £150,000 • 2 bed • 1 bath • 624 ft²










































































