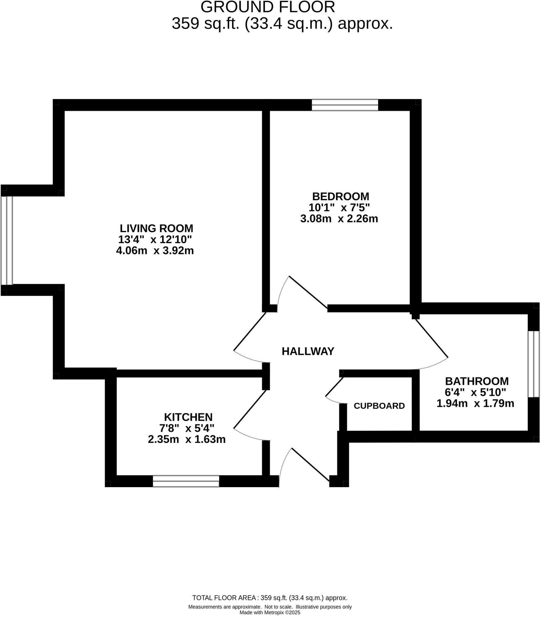
- One-bedroom ground-floor flat, 359 sq ft
- Walking distance to town centre and mainline station
- Allocated off-street parking space
- Short lease: 59 years remaining — mortgage risk
- Requires renovation; electric heating assumed
- EPC rating E; administration and buyer's fees apply
- For sale by online auction (30th September 2025)
- Small overall size; couple of external steps to entrance
A compact one-bedroom ground-floor flat in central Bishop's Stortford offered at auction with a guide price of £110,000. The apartment is conveniently located for the town centre and mainline station, with an allocated off-street parking space and good local amenities. Internally the flat is clean but dated and will benefit from updating — suitable for a buy-to-let or a modest owner-occupier project.
There is significant leasehold risk: the current lease has 59 years remaining. This short lease will make mortgage finance difficult or impossible for many buyers and will reduce marketability without a lease extension. Buyers should consult the legal pack for ground rent, service charge and any administration or buyer fees before bidding.
The property will be sold by online auction, so completion costs include an administration fee and buyer's premium payable on exchange. EPC rating E, no central heating system present (electric heaters assumed), and the flat requires renovation — these are straightforward trade-offs for an investor seeking a low entry price and refurbishment upside.
This is a pragmatic opportunity for a cash buyer or experienced landlord prepared to manage a short-lease purchase and refurbishment. It offers proximity to strong local schools, fast broadband and excellent mobile signal, but limited living space and lease constraints mean it’s not suited to buyers requiring mortgage finance or a long-term family home.



























