Freehold four-bedroom detached in quiet cul-de-sac
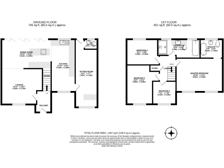
Tucked away at the head of a quiet cul-de-sac in Standish, this four-bedroom detached home offers contemporary family living across well-planned accommodation. The ground floor centres on a bright open-plan kitchen and dining area with a central island and bi-fold doors that connect effortlessly to the low-maintenance rear garden — ideal for weekend gatherings and everyday family life.
Three versatile reception rooms give flexible living space: a large 23-foot room currently used as a snug/home bar, plus separate living and dining/family areas. Upstairs are four well-proportioned bedrooms, including a generous master with en suite, and a modern family bathroom. The house totals around 1,350 sq ft, providing space without excessive maintenance.
Practical advantages include ample off-street parking and a smart elevated frontage, freehold tenure, no flood risk, excellent mobile signal and fast broadband — all useful for commuting and working from home. The setting is well-regarded and close to Standish village amenities and several highly rated schools, making this a strong family location.
A few points to note: council tax is above average for the area, and while the property is well presented, buyers seeking further modernisation or cosmetic changes may want to budget accordingly. Viewings are recommended to appreciate the adaptable layout and garden flow in person.
4 bedroom detached house for sale in Boars Head Avenue, Standish, Wigan, WN6 — £340,000 • 4 bed • 1 bath • 1389 ft²
4 bedroom detached house for sale in Stableford Close, Standish, WN6 — £390,000 • 4 bed • 2 bath • 1334 ft²
4 bedroom detached house for sale in Westmead, Wigan, WN6 0TL, WN6 — £520,000 • 4 bed • 4 bath • 1862 ft²
4 bedroom detached house for sale in Fircroft, Standish, Wigan, WN6 — £475,000 • 4 bed • 2 bath • 2401 ft²
4 bedroom detached house for sale in Boars Head Avenue, Standish WN6 OBH, WN6 — £370,000 • 4 bed • 2 bath • 1555 ft²
4 bedroom detached house for sale in Fontwell Close, Standish, WN6 — £350,000 • 4 bed • 2 bath • 1215 ft²






















































































































































