Period semi with garden, driveway and strong commuter links — needs modernisation..
Three reception rooms including bay-windowed living room with open fire|Two double bedrooms plus dressing room/study third bedroom|Private rear garden and driveway off-street parking|Dated mid-20th-century kitchen needs modernization|Solid brick 1920s walls likely without modern insulation|Single family bathroom only; may limit larger households|Close to local amenities and c6 miles to M4 J14|Excellent mobile and fast broadband; low flood risk
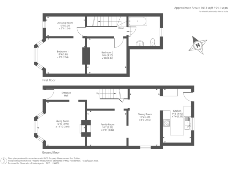
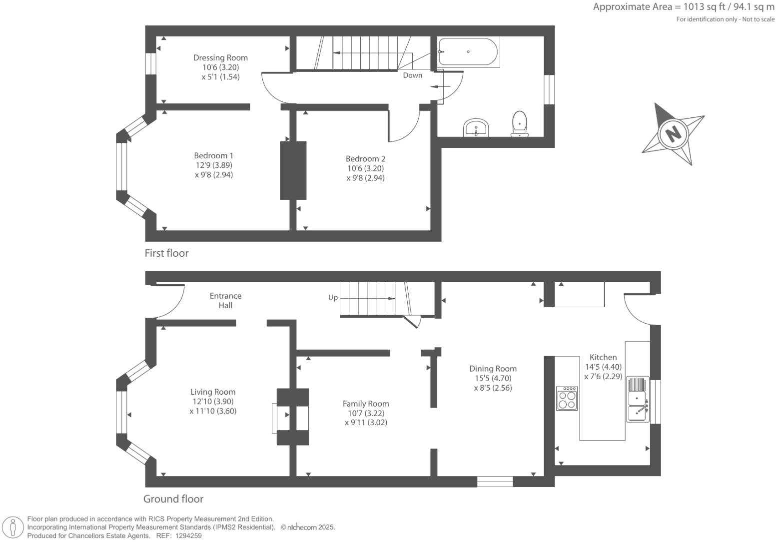
A 1920s semi-detached character house in Lambourn offering spacious, traditional rooms and countryside village living. The property features bay windows, open fireplaces and a private rear garden — ideal for families seeking period charm close to local amenities.
Internally there are three reception rooms, a kitchen with mid-20th-century fittings and two double bedrooms plus a third room suitable as a dressing room, study or single bedroom. The house is double‑glazed (install date unknown) and runs on mains gas boiler heating; broadband and mobile signal are strong.
Practical positives include driveway parking, decent plot size and easy access to the M4 (around 6 miles). Council tax is described as affordable and flood risk is very low, which supports longer-term running costs and insurance.
Important drawbacks: the property needs modernization throughout — the kitchen is dated and rooms show period construction with solid brick walls likely lacking modern insulation. There is a single family bathroom only. Buyers should budget for updating, potential insulation/work to walls, and general refurbishment to bring services and finishes up to modern standards.
3 bedroom semi-detached house for sale in Newbury Street, Lambourn, RG17 — £310,000 • 3 bed • 1 bath • 1044 ft²
3 bedroom semi-detached house for sale in Woodbury, Lambourn, Hungerford, RG17 — £315,000 • 3 bed • 1 bath • 1256 ft²
3 bedroom semi-detached house for sale in Oxford Street, Lambourn, Hungerford, Berkshire, RG17 — £320,000 • 3 bed • 1 bath • 907 ft²
2 bedroom semi-detached house for sale in Bockhampton Road, Lambourn, Hungerford, RG17 — £340,000 • 2 bed • 1 bath • 797 ft²
3 bedroom semi-detached house for sale in Lambourne Place, Lambourn, Hungerford, RG17 — £285,000 • 3 bed • 1 bath • 746 ft²
3 bedroom terraced house for sale in Upper Lambourn, Hungerford, Berkshire, RG17 — £290,000 • 3 bed • 1 bath • 914 ft²






















































































