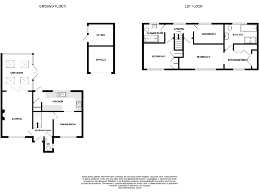
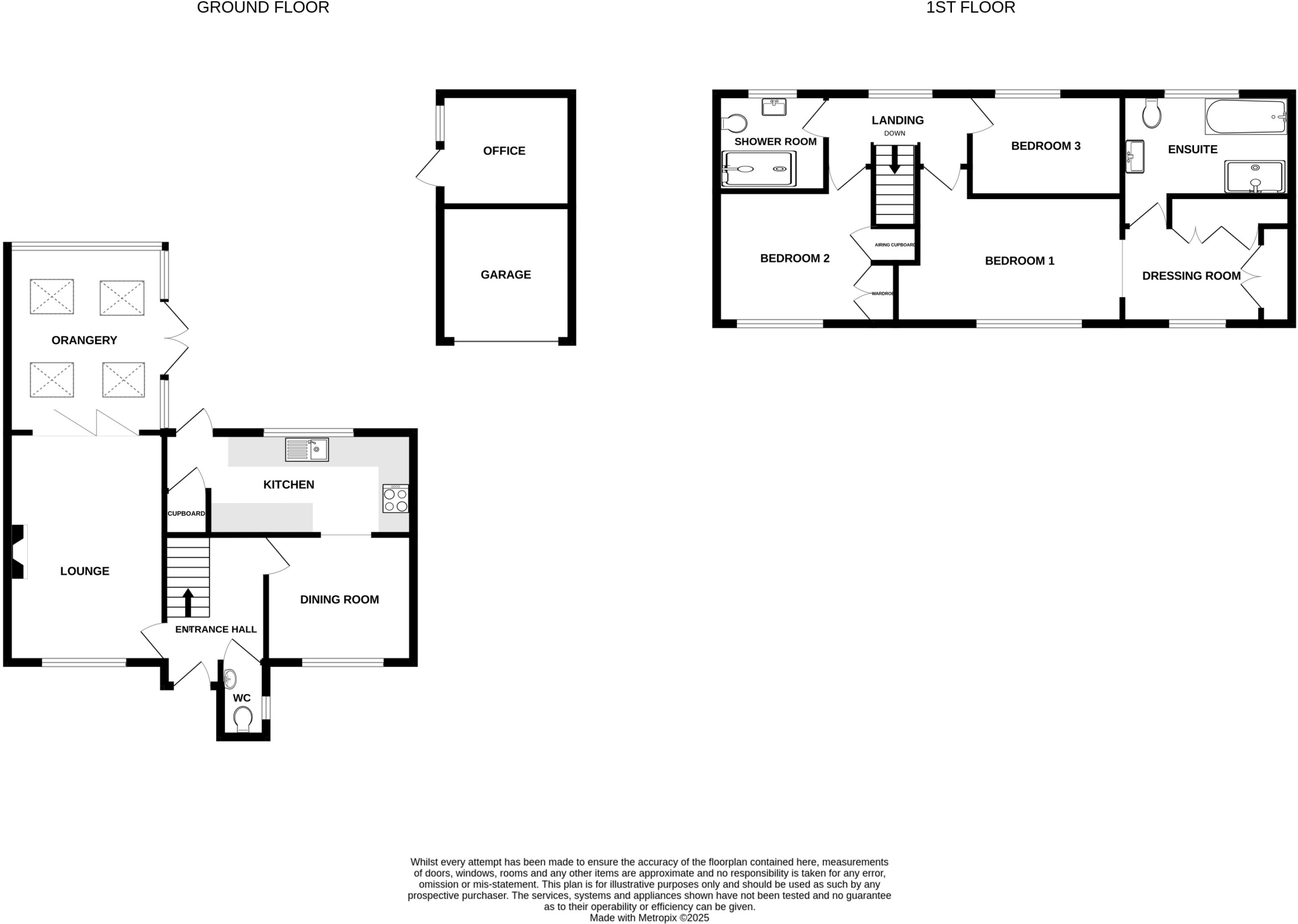
**Standout Features:**
- Three-bedroom link-detached house with modern finishes
- Spacious orangery and inviting lounge with log burner
- Principal bedroom with dressing room and en-suite
- Additional outside bar and office perfect for entertaining or remote work
- Landscaped garden with artificial grass and patio area for low maintenance
- Gated carport accommodating up to three vehicles, plus garage
- EV charger installed
**Concise Summary:**
Discover your dream family home in the picturesque village of Tiptree! This newly renovated three-bedroom link-detached house boasts a blend of modern charm and practical living, highlighted by a spacious lounge with a cozy log burner and seamless access to a stunning orangery that floods the space with natural light. The well-designed kitchen and dining area are perfect for family gatherings, complemented by a convenient ground-floor cloakroom.
Upstairs, find the principal bedroom featuring a dressing room and en-suite, alongside two more well-sized bedrooms and a stylish shower room. The property's outdoor space is equally impressive, with an easily maintainable landscaped garden, an elegant gazebo, and separate bar and office areas, making it ideal for entertaining or working from home.
Nestled in a low-crime, affluent neighborhood, this home offers access to reputable schools and local amenities. With the added benefits of a gated carport, garage storage, and EV charging facilities, this property suits families and professionals seeking both comfort and functionality. Don’t miss out on this rare opportunity—schedule a viewing today to envision your life in this inviting haven!
3 bedroom detached house for sale in Rookery lane, Tiptree, CO5 — £500,000 • 3 bed • 2 bath • 1206 ft²
4 bedroom link detached house for sale in Kiltie Road, Tiptree, CO5 — £425,000 • 4 bed • 2 bath • 1376 ft²
4 bedroom detached house for sale in Tawell Mews, Tiptree, CO5 — £475,000 • 4 bed • 2 bath • 1231 ft²
3 bedroom link detached house for sale in Ketley Close, Tiptree, CO5 — £350,000 • 3 bed • 2 bath • 790 ft²
3 bedroom end of terrace house for sale in Southgate Crescent, Tiptree, CO5 — £375,000 • 3 bed • 2 bath • 1004 ft²
3 bedroom semi-detached house for sale in Berryfield Close, Tiptree, CO5 — £400,000 • 3 bed • 2 bath • 832 ft²


































































































