RM9 4DJ - 2 bed two bedroom mid terrace in Barking, RM9 4DJ

View on Property Piper

2 bedroom terraced house for sale in 7 Canonsleigh Road, Dagenham, RM9 4DJ, RM9

Summary - 7, CANONSLEIGH ROAD, DAGENHAM RM9 4DJ

2 bed 1 bath Terraced

Vacant, repair-needed house with garden and parking near parks and rail links.
Two-bedroom mid-terrace with vacant possession
Off-street parking and private rear garden
Requires full modernisation throughout
Extension potential subject to requisite consents
Freehold tenure; no recorded flood risk
Fast broadband and excellent mobile signal
Located near good primary and secondary schools
Area classified as deprived; average local crime
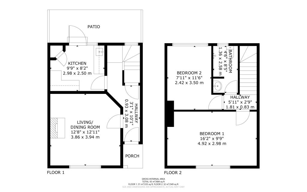
A straightforward two-bedroom mid-terrace offering vacant possession and genuine potential for a family or investor prepared to refurbish. The house includes off-street parking and a private rear garden, useful for outdoor space in a compact plot. Its mid-20th-century construction presents straightforward layout improvements and scope to extend, subject to required planning and building consents.

The property requires full modernisation throughout: cosmetic and likely systems upgrade are needed to bring the home to contemporary standards. This presents a clear value opportunity for buyers able to budget for renovation and personalise the accommodation. Broadband speeds are fast and mobile signal excellent, supporting modern home working and family connectivity.

Located in Dagenham with good local schools and parks close by, the house suits commuters and young families seeking affordability within reach of rail links. Note the area is generally deprived with average crime levels; buyers should factor local context into long-term plans. Freehold tenure and no recorded flood risk simplify ownership, and the property will be sold at auction, so interested parties should review the legal pack and prepare accordingly.

Property Details

Image Descriptions

Textual Property Features

Target Audience

AI Tags

Detected Visual Features

Nearby Schools

Nearest Bars And Restaurants

,,,,}

Nearest General Shops

,,}

Nearest Grocery shops

,,}

Nearest Supermarkets

,,}

Nearest Religious buildings

,,}

Nearest Medical buildings

,,,}

Nearest Airports

,}

Nearest Leisure Facilities

,,,,}

Nearest Tourist attractions

,,}

Nearest Train stations

,,,,}

Nearest Bus stations and stops

,,,,}

Nearest Hotels

,,}

Tags

Local Market Stats

AirBnB Data

Similar Properties

Meta

High Res Images

Compatible Images

Low res Images

Thumbnails

Raw Images