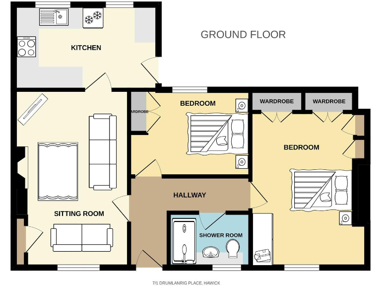
Immaculate two-bedroom ground-floor flat with private access and low-maintenance garden.
Two double bedrooms with built-in wardrobe storage
A well-presented two-bedroom ground-floor flat offering straightforward, move-in ready accommodation in the heart of Hawick. The sitting/dining room and contemporary kitchen provide practical everyday living, while gas central heating and double glazing help keep running costs reasonable. Private front and rear access plus two outhouses give unusually useful storage for a flat.
This home suits a first-time buyer or buy-to-let investor seeking a compact, low-maintenance property close to the town centre and local amenities. The bright kitchen doors open to a shared, low-maintenance rear garden (shared with only one other property), giving outdoor space without onerous upkeep. EPC rating C is average for an older building and the accommodation is presented in neutral tones throughout.
Buyers should note the local context: the wider area is classified as very deprived, and parking is on-street only. Rooms are compact for a two-bedroom home, so buyers wanting large, open-plan space may find the layout limiting. Overall, this is a sensible, well-kept flat with good storage and transport links, offering clear value for first-time purchasers or investors wanting a straightforward let.
2 bedroom flat for sale in 2E, St Cuthberts Terrace
Hawick, TD9 9DR, TD9 — £79,995 • 2 bed • 1 bath • 807 ft²
2 bedroom flat for sale in Ramsay Road, Hawick, TD9 — £85,000 • 2 bed • 1 bath • 689 ft²
2 bedroom flat for sale in Laidlaw Terrace, Hawick, TD9 — £65,000 • 2 bed • 1 bath • 933 ft²
1 bedroom flat for sale in 1/1 Park Terrace, Hawick, TD9 — £65,000 • 1 bed • 1 bath
2 bedroom flat for sale in 34C Loan, Hawick, TD9 0AT – Cancelled viewing, TD9 — £75,000 • 2 bed • 1 bath • 712 ft²
2 bedroom flat for sale in Duke Street, Hawick, TD9 — £50,000 • 2 bed • 1 bath • 503 ft²






























































































