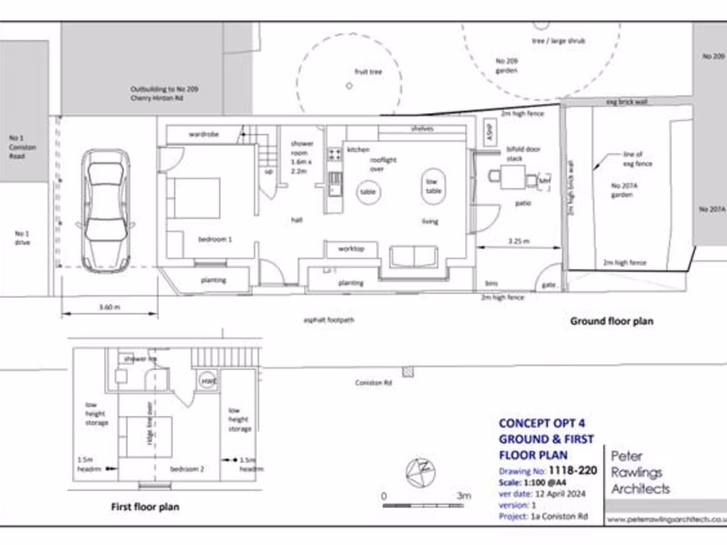
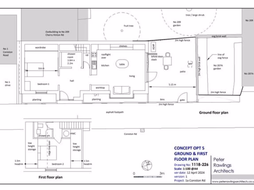
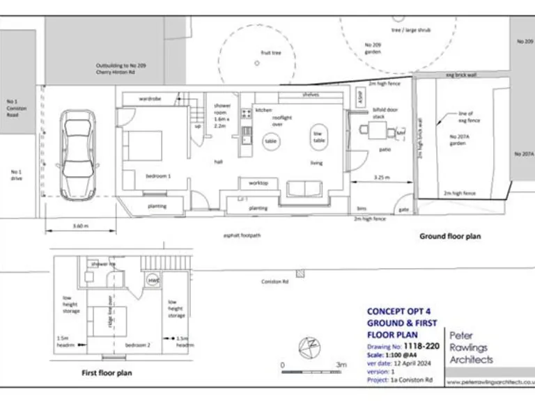
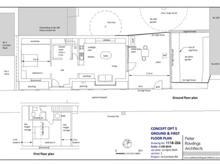
Freehold CB1 plot with proposed two-bed plans — planning required, strong central location.
Freehold 131 sqm plot with existing off-street parking and single garage
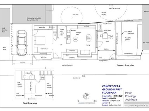
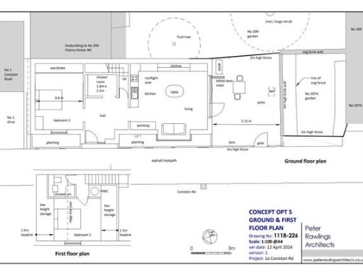
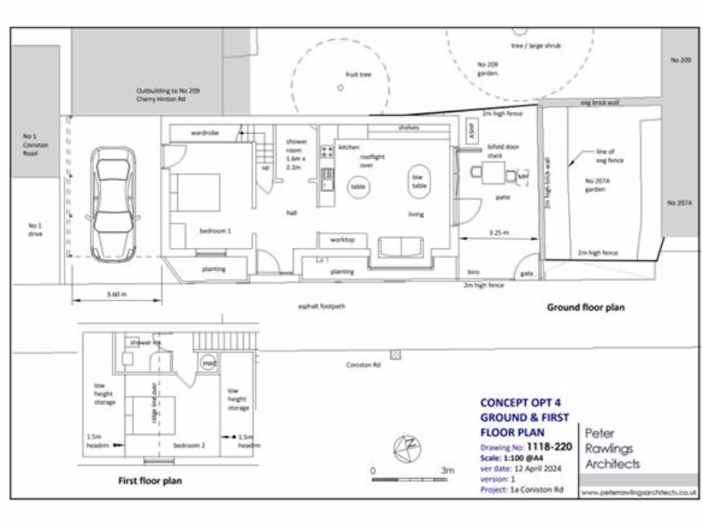
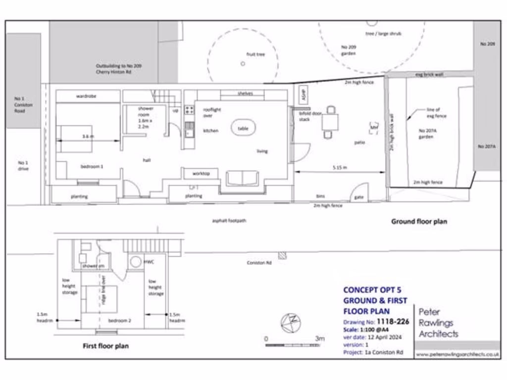
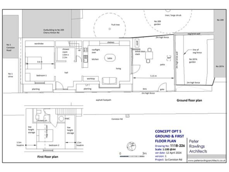
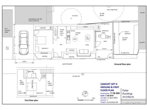
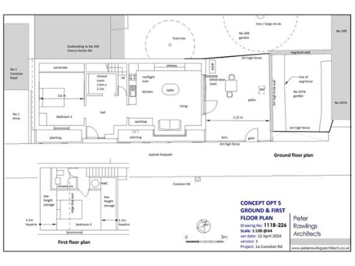
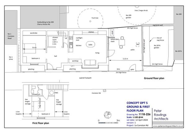
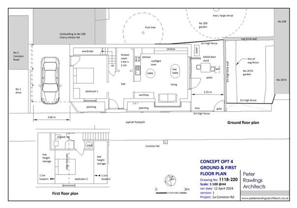
A rare small freehold development plot in a well-connected Cambridge pocket, offered with indicative proposals for a contemporary two-bedroom detached home. The 131 sqm (0.03 acre) site currently provides off-street parking and a detached single garage — useful existing features for a rebuild or new-build project.
This opportunity suits an investor or developer able to secure planning permission and deliver a compact multi-story home with two bedrooms, two bathrooms and open-plan living. The plot sits moments from Cherry Hinton Road and Mill Road, with fast links to the city centre, Cambridge station and Addenbrooke’s — strong locational benefits for rental demand or resale value.
Important practical points are straightforward: the plot is freehold and flood risk is reported as nil, but no planning permission is in place and the site is small, so designs will need to maximise space within local planning constraints. The immediate area is cosmopolitan with shops, schools, parks and leisure facilities close by, supporting family and professional rental markets.
Purchasers should budget for the planning process, design and build costs, and any site preparation work. This is a compact, city-centre development plot that offers clear potential for a bespoke new home or an investor seeking a short- to medium-term planning-led uplift.
Land for sale in Whitehill Road, Cambridge, Cambridgeshire, CB5 — £200,000 • 1 bed • 1 bath • 1841 ft²
Land for sale in Malta Road, Cambridge, CB1 — £1,500,000 • 1 bed • 1 bath • 2300 ft²
4 bedroom detached house for sale in Luard Road, Cambridge, Cambridgeshire, CB2 — £1,850,000 • 4 bed • 4 bath • 6652 ft²
Plot for sale in Coldhams Lane, Cambridge, Cambridgeshire, CB1 — £200,000 • 2 bed • 1 bath • 775 ft²
Land for sale in Newmarket Road, Cambridge, CB5 — £1,500,000 • 12 bed • 1 bath • 5575 ft²
Plot for sale in Milton Road, Cambridge, CB4 — £200,000 • 3 bed • 1 bath • 1022 ft²






























































