Spacious three-storey family home with EV charger, garden and top-floor master suite..
No onward chain; freehold and move-in ready.
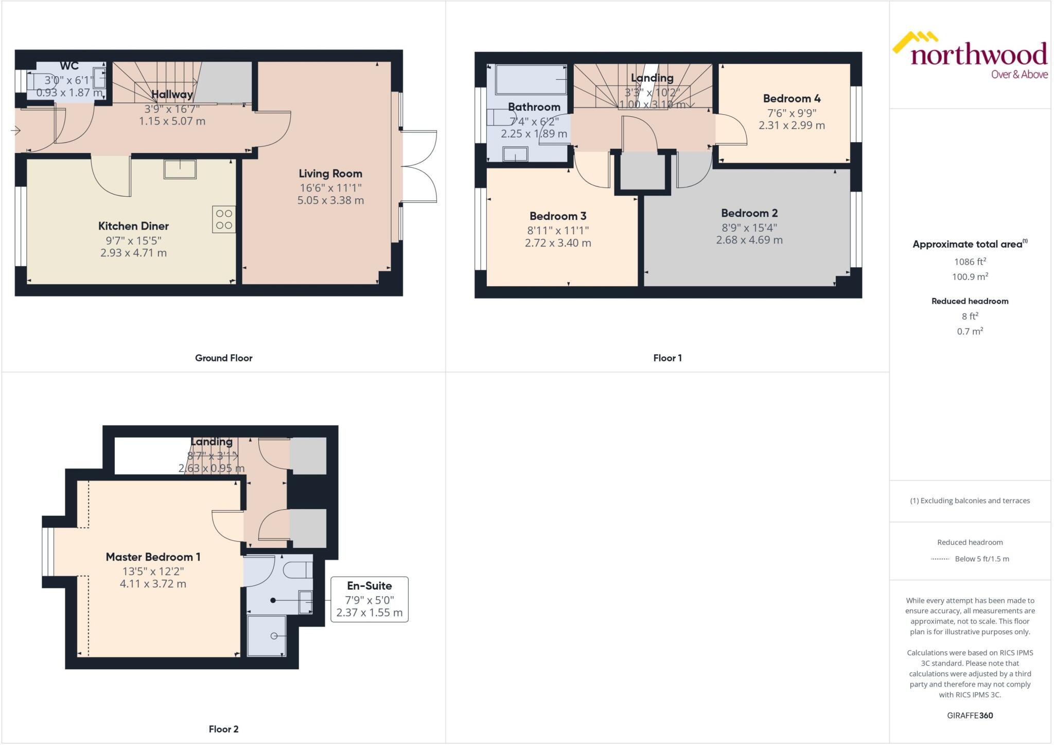
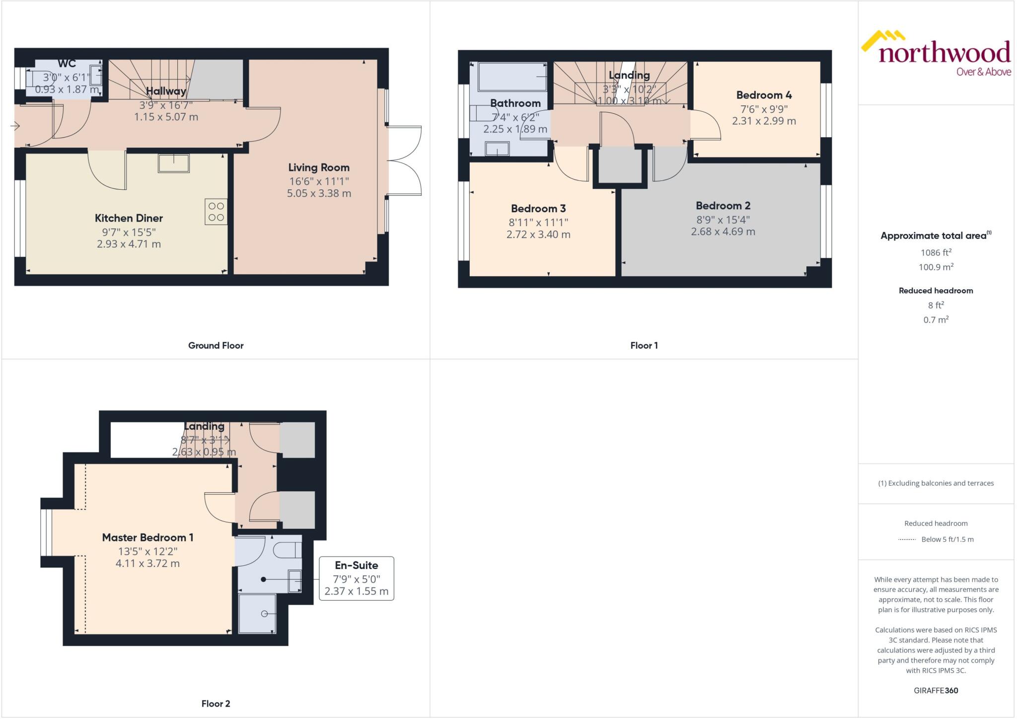
Set on a modern development in sought-after Banbury, this well-presented four-bedroom freehold offers practical family living with no onward chain. Built in 2021, the home feels fresh and efficient (EPC B) and benefits from mains gas central heating, fast broadband and low local crime. The driveway for two cars includes an EV charger, and an enclosed larger-than-average rear garden gives secure outdoor space for children and pets.
Accommodation is arranged over three floors with a bright sitting room and open kitchen-diner on the ground floor, handy laundry cupboard and useful custom under-stairs storage. The first floor provides three bedrooms (two doubles and a large single) and the family bathroom; the whole top floor is given over to a generous master suite with en-suite and additional storage cupboards — a private floor for parents or a flexible work-from-home space.
Practicalities are straightforward: the property is freehold with a modest annual service charge of £168 for communal grass upkeep, moderate council tax banding, and no flood risk. The home’s relatively compact internal footprint suits buyers seeking efficient, modern living rather than expansive rooms. Showcasing modern fixtures and a neutrally decorated interior, it’s move-in ready with scope to personalise.
This location sits in comfortable suburbia with a mix of good local schools and amenities nearby. Overall, the house will appeal to growing families or professionals wanting a recently built, low-maintenance home with off-street parking, private garden and flexible top-floor living.
4 bedroom detached house for sale in Bidwell Road, Banbury, OX16 — £400,000 • 4 bed • 3 bath • 1344 ft²
4 bedroom semi-detached house for sale in Tony Humphries Road, Banbury, Oxfordshire, OX16 — £380,000 • 4 bed • 3 bath • 1270 ft²
4 bedroom detached house for sale in Meadowsweet Way, Banbury, OX16 — £440,000 • 4 bed • 2 bath • 1372 ft²
3 bedroom link detached house for sale in Bullers Street, Banbury, OX16 — £320,000 • 3 bed • 2 bath • 904 ft²
3 bedroom semi-detached house for sale in Nickling Road, Banbury, Oxfordshire, OX16 — £300,000 • 3 bed • 2 bath • 738 ft²
4 bedroom detached house for sale in Bailey Road, Banbury, OX16 — £410,000 • 4 bed • 2 bath • 1136 ft²






















































































































