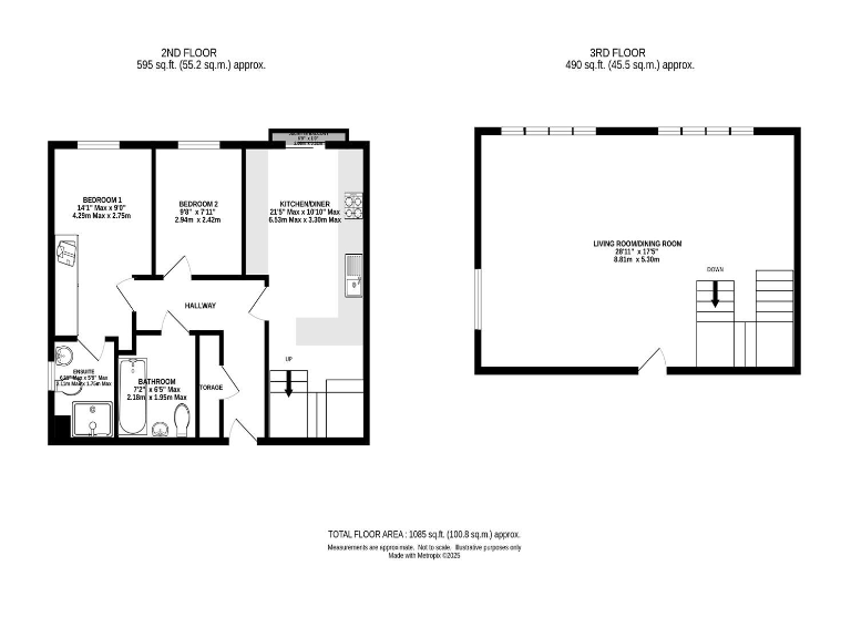
**Standout Features:**
- Modern duplex apartment across two floors in a gated development
- 2 bedrooms and 2 bathrooms, including en-suite
- Expansive 28ft lounge with ample natural light
- Allocated parking and additional visitor spaces
- Close to Metrolink and local amenities
- No onward chain
- Total size: 1084 sqft
This stunning two-bedroom duplex apartment offers contemporary living within a secure, gated community. Spread over the second and third floors, the property impresses with a generous 28-foot lounge that serves as an inviting space for entertaining or relaxing. A well-appointed breakfast kitchen and two bathrooms—including an en-suite—provide essential comfort and functionality.
Perfectly positioned, the apartment is just minutes away from local amenities and Metrolink, allowing for easy access to surrounding areas. With allocated parking and visitor spaces, the development stands out for its convenience and security. This is a rare opportunity for first-time buyers or investors seeking a stylish and spacious home without the burden of an onward chain. However, be aware of the service charge of £1,800 per year. Don’t miss out on this exceptional offering in a thriving, affluent neighborhood!
2 bedroom apartment for sale in Romana Square, Altrincham, WA14 — £300,000 • 2 bed • 2 bath • 1292 ft²
2 bedroom apartment for sale in Park Road, Timperley, Altrincham, WA14 — £225,000 • 2 bed • 1 bath • 556 ft²
2 bedroom apartment for sale in Park Road, Timperley, WA14 — £233,000 • 2 bed • 2 bath • 733 ft²
2 bedroom duplex for sale in Lakeside Rise, Manchester, Greater Manchester, M9 — £130,000 • 2 bed • 2 bath • 788 ft²
2 bedroom apartment for sale in Dorset Road, Altrincham, WA14 — £590,000 • 2 bed • 2 bath • 1428 ft²
2 bedroom apartment for sale in St Annes Gardens, Woodville Road, Altrincham, WA14 — £497,500 • 2 bed • 2 bath • 1200 ft²


















































































