**Standout Features:**
- Ground floor retail space in a historic Georgian building
- Prominent corner location in a bustling town center
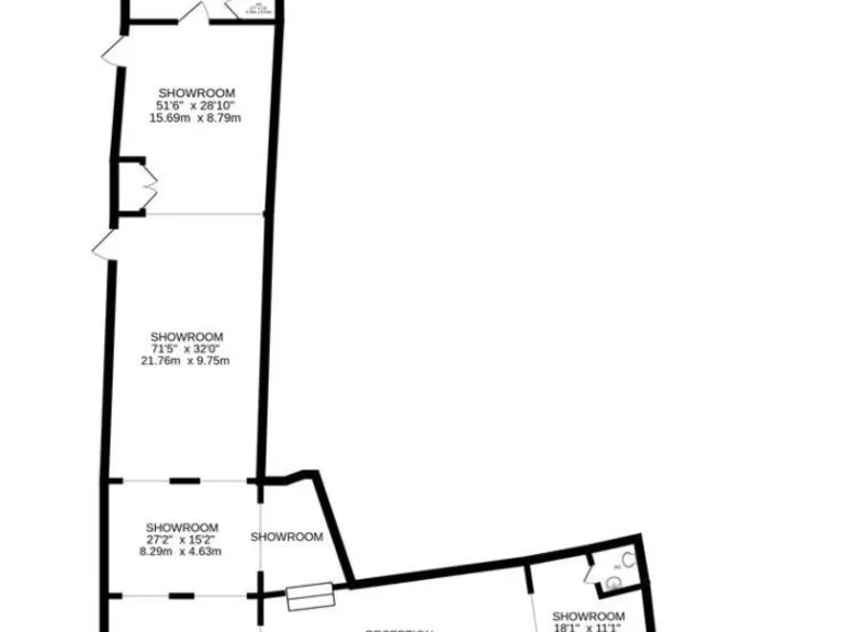
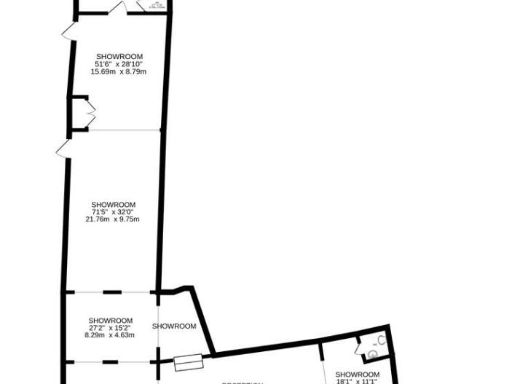
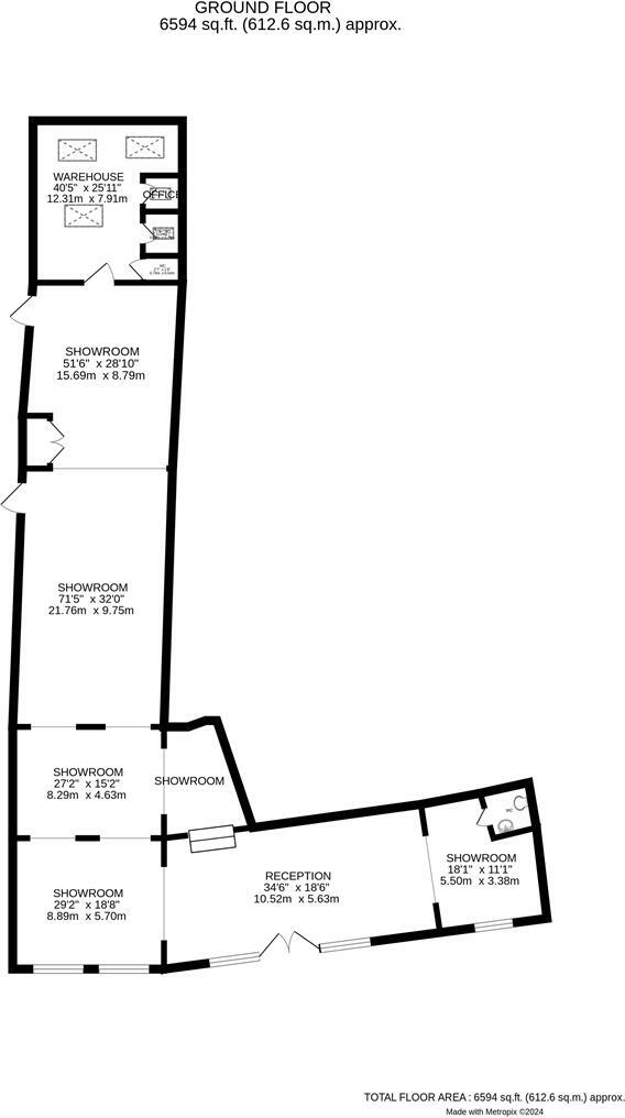
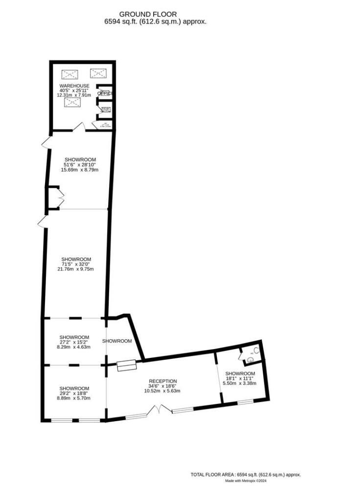
- Spacious net internal area of 639.56 sqm (6,884 sqft)
- On-site parking at the rear
- Modern single-storey extension with additional retail and storage space
- Freehold tenure with development potential
- EPC Rating: C
**Summary Description:**
Discover this spacious ground floor retail property offering a unique blend of historic charm and modern functionality, nestled in a prime central position of PE6 8EA. With a stylish Lincolnshire stone façade and a generous internal layout of approximately 6,884 sqft, this space is ideal for various commercial ventures, including retail or office conversion, suiting both established businesses and start-ups alike. The interior features suspended ceilings with LED lighting and ample storage space, providing an excellent blank canvas for customization (including office, staff, and WC areas).
Parking is a significant advantage, ensuring your customers have convenient access, and the thriving location places you alongside recognizable businesses like Domino's and Co-op, generating consistent foot traffic. With the potential for further development, this property presents a rare opportunity for savvy investors or entrepreneurs seeking to capitalize on the vibrant local market. Don’t miss your chance to secure a prominent position in this affluent community—act fast!
Shop for sale in 1-3 Market Place, Market Deeping, Peterborough, PE6 8EA, PE6 — £800,000 • 1 bed • 1 bath • 6884 ft²
High street retail property for sale in 12 Market Street, PE12 9DF, PE12 — £165,000 • 1 bed • 1 bath • 3477 ft²
High street retail property for sale in 12 Vine Street, Spalding, PE11 1AN, PE11 — £135,000 • 1 bed • 1 bath • 853 ft²
High street retail property for sale in 32 New Road, Spalding, PE11 1DL, PE11 — £180,000 • 1 bed • 1 bath • 1545 ft²
3 bedroom house for sale in New Street, Oundle, Northamptonshire, PE8 — £500,000 • 3 bed • 1 bath • 2992 ft²
Commercial property for sale in 2-4 High Street, Market Deeping, Peterborough, PE6 — £495,000 • 1 bed • 1 bath • 3990 ft²










































