Substantial home with large garden and strong school and transport links.
Five double bedrooms providing flexible family accommodation
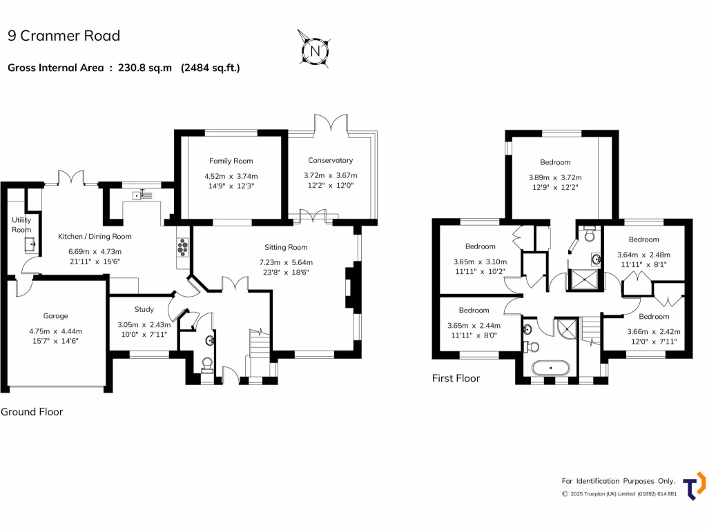
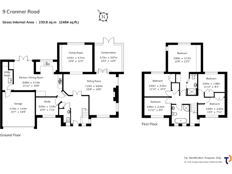
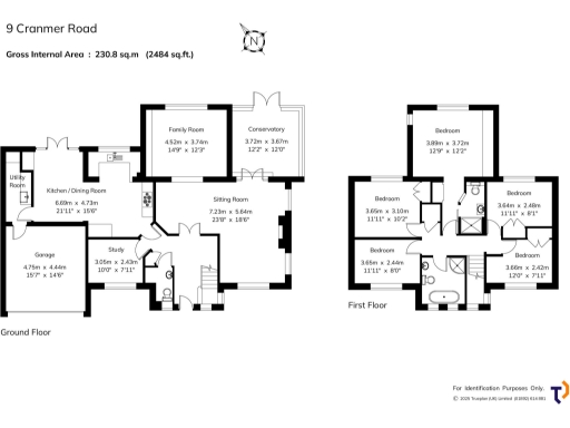
Nearly 2,500 sq ft of living space across two floors
Large wraparound garden with mature trees and generous patio
Integral double garage, EV charging point and driveway parking
Close to Amherst School catchment and Riverhead village amenities
Within ~1 mile of Sevenoaks station — good commuter links
Built 1967–75; cavity walls likely uninsulated, potential upgrade needed
Local broadband speeds slow; council tax Band G (higher running costs)
Set on a large plot at the end of a no-through road, this substantial five-bedroom detached house offers versatile living across nearly 2,500 sq ft. The ground floor delivers a generous kitchen/dining space with solid oak cabinetry and granite worktops, several reception rooms including a conservatory, and convenient internal access to a double integral garage. Upstairs the principal suite and four further doubles provide well-proportioned family accommodation.
The location is a key draw: close to Riverhead village amenities, in the Amherst School catchment and within easy reach of Sevenoaks station (around 1 mile via footpath). Low local crime, abundant green leisure options nearby and excellent mobile signal add everyday convenience for families and professionals commuting to London.
Buyers should note this is a 1960s/70s construction with double glazing installed before 2002 and cavity walls currently assumed to have no insulation. The house presents clear opportunity for energy-efficiency upgrades and cosmetic modernisation to suit contemporary tastes. Broadband speeds are slow locally and council tax is in the upper band (Band G), factors to weigh for working-from-home or high-usage households.
Overall this property suits a family seeking space, good school links and transport connections, or a buyer prepared to invest in targeted refurbishment to improve energy performance and update interior finishes. The large garden, driveway parking and EV charging point are practical benefits for modern family life.
5 bedroom detached house for sale in Chesterfield Drive, Sevenoaks, Kent, TN13 — £900,000 • 5 bed • 2 bath • 1752 ft²
4 bedroom detached house for sale in Marlborough Crescent, Sevenoaks, TN13 — £1,450,000 • 4 bed • 3 bath • 2237 ft²
4 bedroom detached house for sale in Chesterfield Drive, Sevenoaks, TN13 — £850,000 • 4 bed • 2 bath • 1393 ft²
5 bedroom detached house for sale in Nursery Place, Sevenoaks, Kent, TN13 — £1,000,000 • 5 bed • 3 bath • 2159 ft²
5 bedroom detached house for sale in Chesterfield Drive, Sevenoaks, Kent, TN13 — £875,000 • 5 bed • 2 bath • 1586 ft²
3 bedroom house for sale in Scotts Way, Sevenoaks, Kent, TN13 — £625,000 • 3 bed • 1 bath • 1240 ft²


















































































