Modern two-bedroom ground-floor flat ideal for commuters or investors.
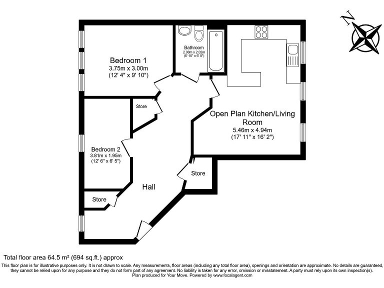
Ground-floor two-bedroom apartment, approx. 694 sq ft
Allocated off-street parking and communal garden access
0.4 miles to mainline station; excellent broadband and mobile
Modern open-plan kitchen/living with large windows
Leasehold with c.118 years remaining on the lease
Service charge c. 1,776 p.a.; ground rent c. 270 p.a.
Electric room heating (no gas central heating) may raise bills
Inward-facing outlook; no notable long-distance views
Set on the ground floor of a modern purpose-built block on Addison Road, this two-bedroom flat combines commuter convenience with low-maintenance living. The open-plan living/kitchen benefits from large windows and contemporary finishes, making it ready to occupy for first-time buyers or easy to let for investors. Allocated off-street parking and communal garden space add everyday practicality.
The location is a standout: about 0.4 miles to the mainline station with frequent services into London, short walks to shops and parks, and close to several well-regarded schools. Broadband speeds are fast and mobile signal is excellent, supporting home working or streaming. The long lease (approx. 118 years) and absence of flood risk are additional ownership positives.
Buyers should note this is a leasehold property with an annual service charge (c. 1,776) and ground rent (c. 270). Heating is electric via room heaters rather than gas central heating, which may mean higher running costs. The flat faces inward to communal areas, so there are no special long-distance views. Overall, the property is a practical, modern flat suited to commuters, couples, or landlords seeking straightforward rental stock.
2 bedroom apartment for sale in Colebrook Road, Tunbridge Wells, Kent, TN4 — £260,000 • 2 bed • 1 bath • 586 ft²
2 bedroom flat for sale in Frant Road, Tunbridge Wells, TN2 — £400,000 • 2 bed • 2 bath • 939 ft²
2 bedroom apartment for sale in Upper Grosvenor Road, TUNBRIDGE WELLS, Kent, TN1 — £285,000 • 2 bed • 2 bath • 730 ft²
1 bedroom flat for sale in Addison Road, TUNBRIDGE WELLS, TN2 — £185,000 • 1 bed • 1 bath • 443 ft²
2 bedroom ground floor flat for sale in Medway Road, Tunbridge Wells, TN1 — £250,000 • 2 bed • 2 bath • 646 ft²
2 bedroom apartment for sale in Garden Road, Tunbridge Wells, Kent, TN1 — £325,000 • 2 bed • 2 bath • 732 ft²


































