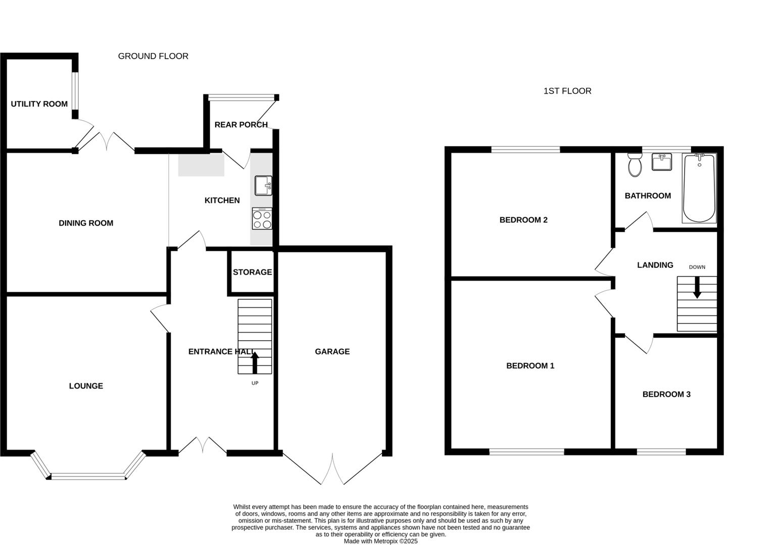
**Standout Features:**
- Three spacious bedrooms, including two doubles and one single
- Expansive terraced rear garden with stunning mountain views and walking access
- Open-plan kitchen/diner with feature fireplace and direct garden access
- Generous front garden with off-road parking for three vehicles and garage
- Bright lounge with bay window and multi-fuel stove
- Outdoor utility space and WC
- Freehold tenure
Nestled in the picturesque village of Dwygyfylchi, this charming three-bedroom semi-detached home offers a perfect blend of comfort and character, ideal for families and nature enthusiasts alike. The expansive terraced garden boasts stunning mountain views and ample space for outdoor activities, including multiple patios for entertaining or relaxation. Inside, the bright lounge welcomes you with a bay window and a cozy multi-fuel stove, while the open-plan kitchen/diner provides a perfect setting for family gatherings.
Upstairs, you will find two generous double bedrooms and a cozy single, along with a modern family bathroom. The property's low crime rate and proximity to walking trails enhance its appeal, making it a safe and idyllic living space. Although it requires some minor maintenance, such as potential insulation updates for energy efficiency, the overall layout and condition present excellent renovation potential. With fast broadband speeds and easy access to the A55 and Conwy, this property is a unique opportunity not to be missed—come and envision your future in this tranquil haven!
3 bedroom semi-detached house for sale in Gwynan Park, Dwygyfylchi, Penmaenmawr, Conwy, LL34 — £220,000 • 3 bed • 1 bath • 976 ft²
3 bedroom semi-detached house for sale in Groesffordd,Dwygyfylchi, LL34 — £260,000 • 3 bed • 1 bath • 928 ft²
3 bedroom semi-detached house for sale in Cae Gwynan, Dwygyfylchi , LL34 — £259,500 • 3 bed • 1 bath • 1120 ft²
3 bedroom semi-detached house for sale in Heol Fryn, Mochdre, Colwyn Bay, Conwy, LL28 — £195,000 • 3 bed • 1 bath • 595 ft²
3 bedroom semi-detached house for sale in Conolly Close, Penrhyn Bay, LL30 — £259,950 • 3 bed • 2 bath
3 bedroom semi-detached house for sale in Graham Road, Dolgarrog , LL32 — £165,000 • 3 bed • 1 bath • 765 ft²






































































