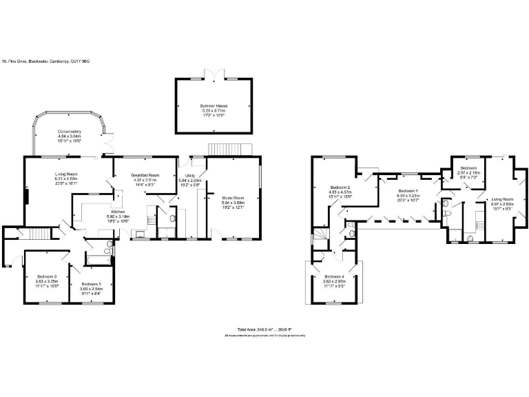
**Standout Features:**
- Spacious 0.25 acre plot with over 2600 sqft of living space
- Versatile layout: six bedrooms, three reception rooms, and annexe potential
- Landscaped gardens with summer house and multiple outbuildings
- Ideal location near Blackwater shops, amenities, and train station
- Excellent mobile and broadband connectivity
Nestled in a desirable cul-de-sac, this stunning detached home presents an impressive 2600 sqft of versatile accommodation, making it perfect for large families, multi-generational living, or even home-based business opportunities. The main floor features a generous layout with three reception rooms, a cozy conservatory, a kitchen with utility space, and two comfortable bedrooms with two bathrooms, while the first floor adds four additional bedrooms, a shower room, and a living area—providing ample room for everyone.
The property also boasts beautifully landscaped gardens, highlighted by a spacious patio, manicured lawns, a charming summer house, and stylish outbuildings including a Dutch barn and two sheds. Situated conveniently close to local schools with Good Ofsted ratings and just a stone’s throw from Blackwater train station, this home combines suburban tranquility with easy access to urban amenities. While the home has great structure and potential, it may benefit from some personal updates. Don't miss out on this exceptional opportunity that promises comfort, flexibility, and a bright future!
3 bedroom semi-detached house for sale in Randell Close, Blackwater, Camberley, GU17 — £475,000 • 3 bed • 1 bath • 1140 ft²
3 bedroom semi-detached house for sale in Fernhill Close, Blackwater, GU17 — £450,000 • 3 bed • 1 bath • 1238 ft²
5 bedroom detached house for sale in Sandhurst Lane, Blackwater, GU17 — £750,000 • 5 bed • 3 bath • 2060 ft²
4 bedroom detached house for sale in Campion Close, Blackwater, Camberley, GU17 9DU, GU17 — £600,000 • 4 bed • 2 bath • 951 ft²
2 bedroom semi-detached house for sale in Ashley Drive, Blackwater, GU17 — £428,000 • 2 bed • 1 bath • 807 ft²
3 bedroom semi-detached house for sale in The Glebe, Blackwater, GU17 — £425,000 • 3 bed • 1 bath • 1161 ft²


















































































































