Well-presented coastal home close to shops, beaches and communal gardens.
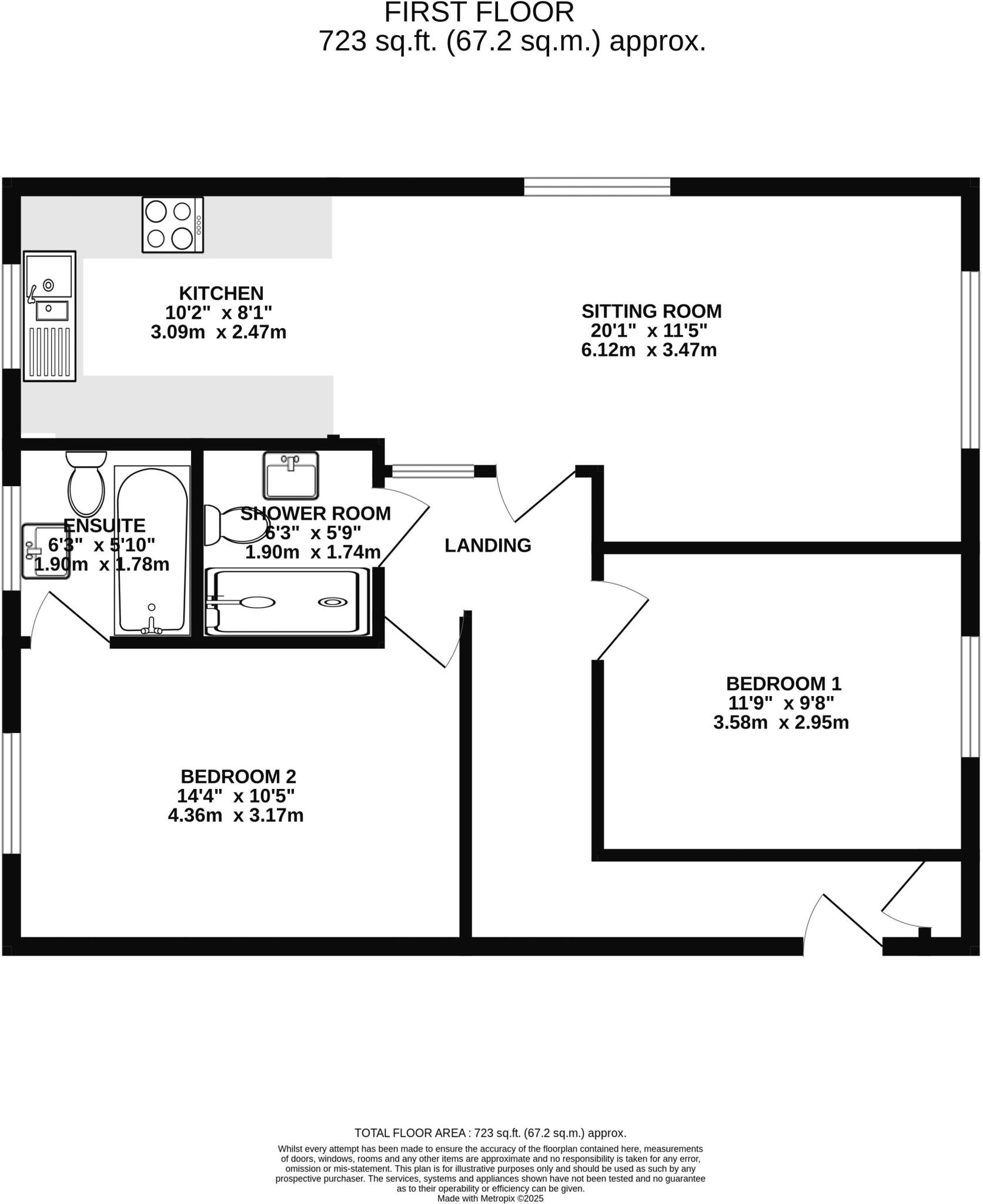
- First-floor, two-bedroom apartment with ensuite to principal bedroom
- Bright triple-aspect open-plan kitchen, living and dining room
- Share of freehold with 177 years remaining on the lease
- Service charge £1,440 pa (2024); management company oversees maintenance
- Garage included plus communal gardens and limited visitor parking
- Electric heating only (no gas); all mains except gas connected
- No lift access (stairs to first floor) may affect mobility
- No holiday letting or pets permitted under current rules
A bright, purpose-built first-floor apartment in a peaceful Lyme Regis spot, a short walk from the town centre and beaches. The open-plan kitchen, living and dining room benefits from triple-aspect windows that flood the space with light, while two double bedrooms include a modern ensuite to the principal room.
Practical features include double glazing, new carpets, integrated kitchen appliances and electric radiators. Outside there are communal gardens, a communal drying area, limited visitor parking and a private garage — useful for storage or a car in this small town location. The property is offered as a long leasehold (share of freehold) with 177 years remaining and an annual service charge of £1,440 (2024).
Notable constraints are straightforward: heating is electric only (no gas), the building is accessed by stairs to the first floor (no lift), and the leaseholders operate a management company with rules that currently prohibit holiday letting and pets. These are important for buyers seeking rental income or pet ownership.
This apartment suits downsizers or coastal living seekers who prioritise light, low-maintenance communal grounds and proximity to amenities. It presents a ready-to-live-in home with scope to personalise cosmetic details while avoiding major structural or flood concerns.
2 bedroom apartment for sale in Lewesdon Court, Silver Street, Lyme Regis, Dorset, DT7 — £260,000 • 2 bed • 1 bath • 693 ft²
2 bedroom apartment for sale in Silver Street, Lyme Regis, DT7 — £230,000 • 2 bed • 1 bath • 743 ft²
2 bedroom apartment for sale in Charmouth Road, Lyme Regis, DT7 — £250,000 • 2 bed • 2 bath • 778 ft²
2 bedroom apartment for sale in Charmouth Road, Lyme Regis, DT7 — £275,000 • 2 bed • 2 bath • 818 ft²
2 bedroom apartment for sale in Fairfield Park, Lyme Regis, Dorset, DT7 — £275,000 • 2 bed • 1 bath • 541 ft²
2 bedroom apartment for sale in Haye Lane, Lyme Regis, DT7 — £225,000 • 2 bed • 1 bath • 874 ft²






















































