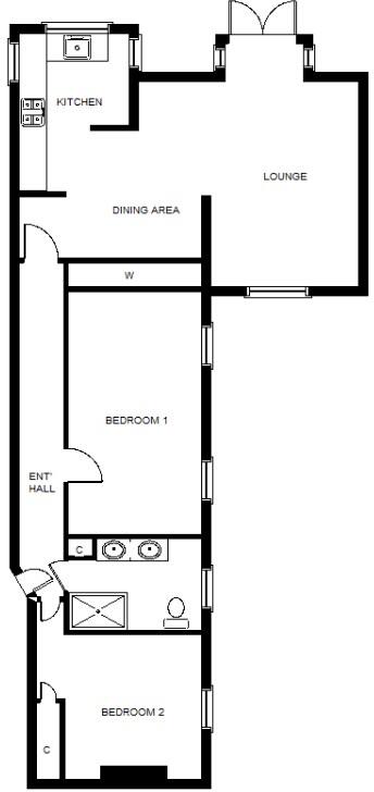
**Standout Features:**
- Immaculate ground floor apartment in a converted Victorian building
- 2 spacious double bedrooms with ample storage
- Open-plan kitchen/dining area and bright living room
- Newly installed modern 4-piece bathroom
- South-facing communal gardens with private and visitor parking
- Long lease (977 years remaining) and low service charge (£90/month)
**Potential Downsides:**
- Compact overall size (520 sq ft)
- Average broadband speeds and urban area deprivation
Discover a beautifully presented ground floor apartment nestled in the desirable Torrs Park area of Ilfracombe. Offering a practical and inviting layout, this home features two generous double bedrooms, a bright and airy open-plan kitchen and living area, plus a newly fitted four-piece shower room that elevates everyday comfort. The modern fitted kitchen boasts integrated appliances, ample cabinetry, and natural light, perfect for both cooking and entertaining. Enjoy tranquil moments in the south-facing communal gardens or take advantage of the private parking space.
This property is an excellent value for first-time buyers or investors, presenting low maintenance living in a vibrant neighborhood, just moments from local amenities and the picturesque waterfront. While it benefits from a shared ownership structure with a well-managed lease, prospective buyers should note the compact overall size, making it ideal for those who appreciate coziness over grandeur. Don’t miss the chance to secure this lovely apartment—early viewings are encouraged!
2 bedroom flat for sale in Torrs Park, Ilfracombe, EX34 — £150,000 • 2 bed • 1 bath • 724 ft²
2 bedroom apartment for sale in Torrs Park, Ilfracombe, Devon, EX34 — £145,000 • 2 bed • 1 bath • 829 ft²
2 bedroom ground floor flat for sale in Torrs Park, Ilfracombe, Devon, EX34 — £134,000 • 2 bed • 2 bath • 520 ft²
1 bedroom flat for sale in Kingswood House, Ilfracombe, EX34 — £115,000 • 1 bed • 1 bath • 360 ft²
2 bedroom flat for sale in Broad Park Avenue, Ilfracombe, EX34 — £160,000 • 2 bed • 1 bath • 1127 ft²
2 bedroom apartment for sale in Hillsborough Terrace, Ilfracombe, EX34 — £160,000 • 2 bed • 1 bath • 786 ft²


















































































