Spacious refurbished lateral apartment with communal garden access and flexible reception rooms.
Southwest-facing views over Lennox Gardens
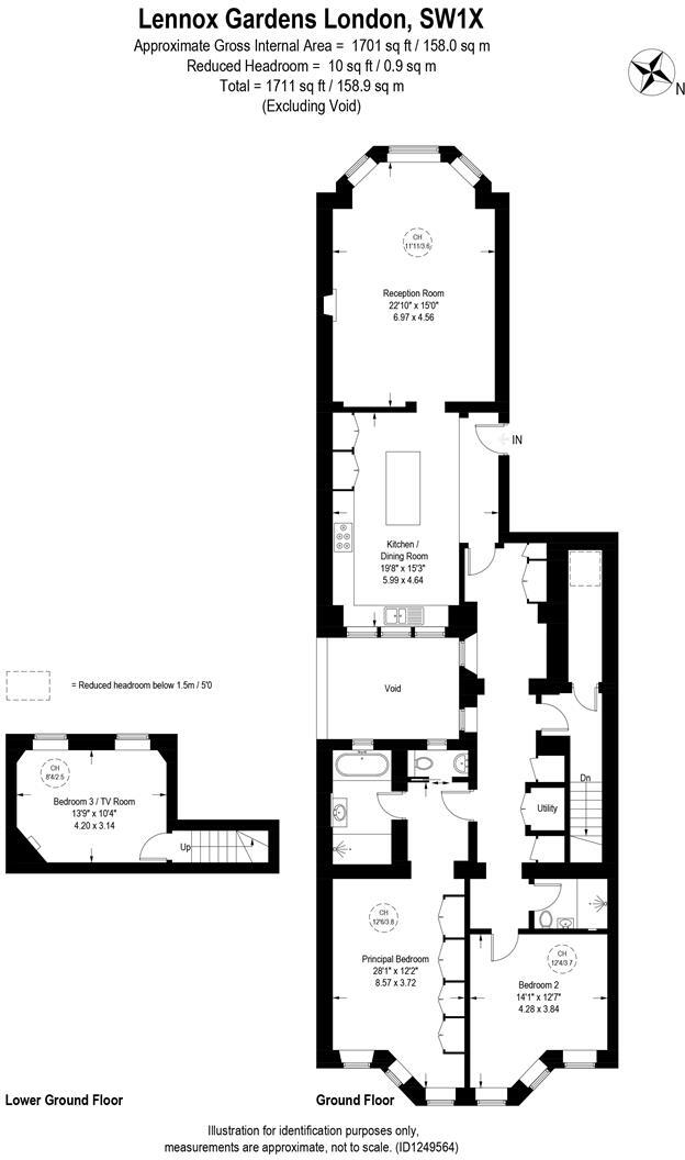
A generously proportioned, recently refurbished lateral apartment set over one level with direct southwest views across Lennox Gardens. High ceilings, period detailing and large bay windows create bright, elegant living spaces ideal for comfortable family life or refined entertaining. The open-plan kitchen is bespoke and light-filled; a principal reception with fireplace and a second reception/snug offer flexible layout options for dining, home working or a third bedroom.
At about 1,701 sq ft this flat delivers exceptional room sizes and useful storage, including a separate utility cupboard. Electric underfloor heating provides discreet warmth throughout. Communal garden access and the address place you in the heart of Knightsbridge, with easy walking distance to Chelsea, South Kensington and world-class shops, restaurants and schools.
Practical considerations are straightforward: the property is leasehold with c.170 years remaining and council tax is noted as quite expensive. The building is of solid brick construction with assumed limited cavity insulation, which could mean higher energy use despite underfloor heating. Overall, this is a turn-key lateral apartment combining period charm with contemporary finishes in a highly desirable central location.
2 bedroom flat for sale in Lennox Gardens, London, SW1X — £1,650,000 • 2 bed • 2 bath • 858 ft²
2 bedroom apartment for sale in Lennox Gardens, Knightsbridge SW1X — £1,695,000 • 2 bed • 2 bath • 861 ft²
3 bedroom apartment for sale in Lennox Gardens, Knightsbridge, London, SW1X, United Kingdom, SW1X — £3,895,000 • 3 bed • 2 bath • 1514 ft²
2 bedroom flat for sale in Lennox Gardens,
Knightsbridge, SW1X — £2,350,000 • 2 bed • 2 bath • 1046 ft²
2 bedroom flat for sale in Lennox Gardens, London, SW1X — £2,350,000 • 2 bed • 2 bath • 1046 ft²
1 bedroom apartment for sale in Lennox Gardens London SW1X — £850,000 • 1 bed • 1 bath • 670 ft²






























































































