Spacious period home with garden and strong refurbishment potential.
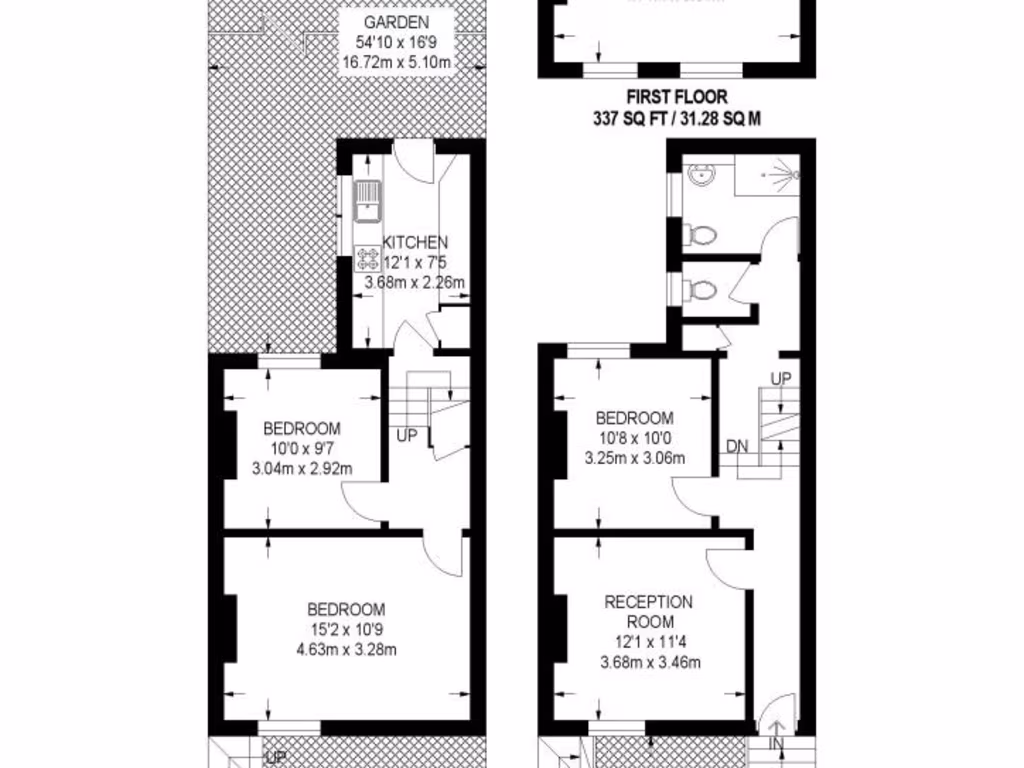
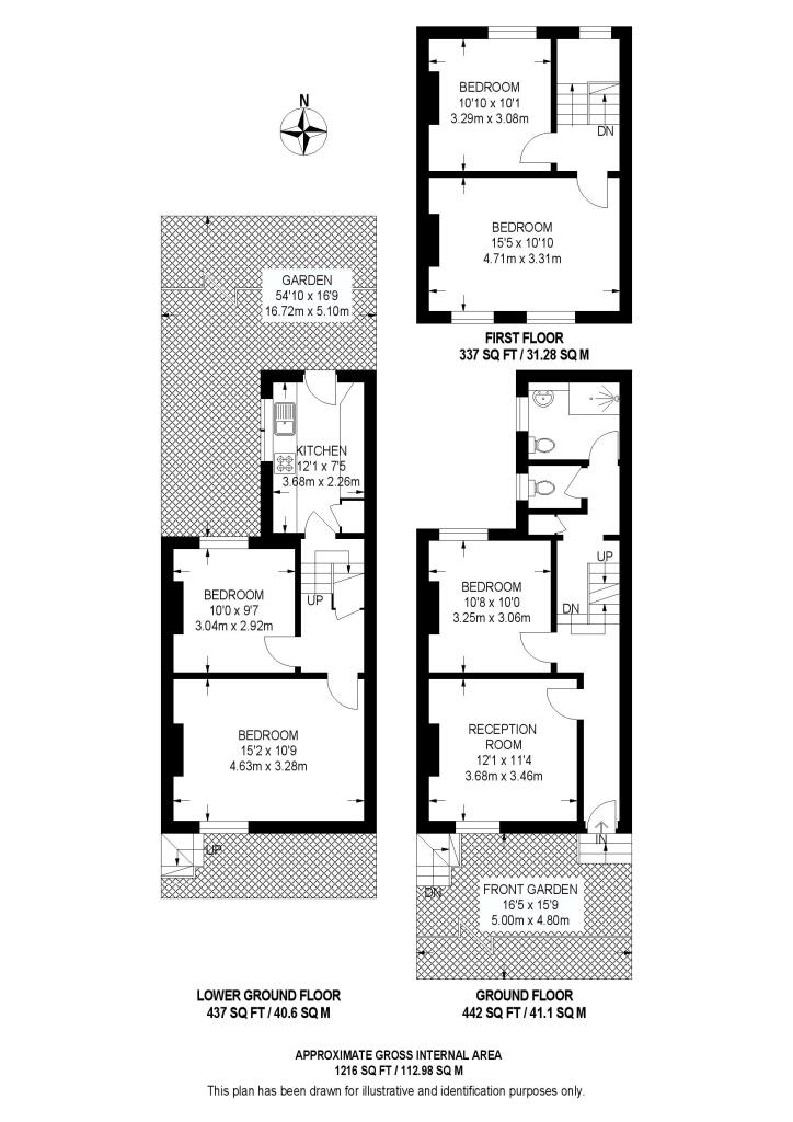
Four double bedrooms across three floors, flexible family layout
Private garden and large reception room with high ceilings
Gross internal area approx. 1,216 sq ft (112.97 sq m)
EPC Rating D – likely needs energy-efficiency improvements
Solid brick walls; probable lack of modern insulation
Single shower room only; add bathrooms for larger households
Sold at online auction (23 Oct 2025) – buy under auction terms
Local area: excellent transport, high crime and area deprivation
This three‑storey semi‑detached house offers generous living space across approximately 1,216 sq ft, with four double bedrooms and a large reception room ideal for families or sharers. The property includes a private garden and sits moments from Queens Road station and local shops, cafes and amenities.
Built around 1900–1929, the house retains Victorian character and high ceilings, presenting clear scope for sympathetic updating or a full refurbishment to unlock value. The lower ground layout (two bedrooms and kitchen) and overall room configuration give good flexibility for modernising the accommodation.
Practical points to note: the EPC is rated D, walls are solid brick (likely without modern insulation) and there is only one shower room, so buyers should budget for energy-efficiency work and additional bathroom facilities if required. The property will be sold at an online auction on 23 October 2025; interested parties should review legal packs and be prepared for the auction process.
Located in an inner‑city area with fast broadband and excellent mobile signal, the house is close to several well‑rated primary and secondary schools. The neighbourhood shows higher crime levels and relative area deprivation, which is reflected in strong rental demand and potential for capital growth after renovation.
4 bedroom terraced house for sale in Queens Road, Peckham, London, SE15 — £820,000 • 4 bed • 1 bath • 1216 ft²
3 bedroom semi-detached house for sale in Blakes Road, London, SE15 — £675,000 • 3 bed • 3 bath • 1464 ft²
4 bedroom terraced house for sale in Blakes Road, Peckham, London, SE15 — £675,000 • 4 bed • 2 bath • 1464 ft²
1 bedroom semi-detached house for sale in Lordship Lane, London, SE22 — £1,100,000 • 1 bed • 4 bath • 1919 ft²
3 bedroom terraced house for sale in Marmont Road, London, SE15 — £700,000 • 3 bed • 1 bath • 1135 ft²
4 bedroom semi-detached house for sale in Dandridge Close, London, SE10 — £500,000 • 4 bed • 1 bath • 1356 ft²














































