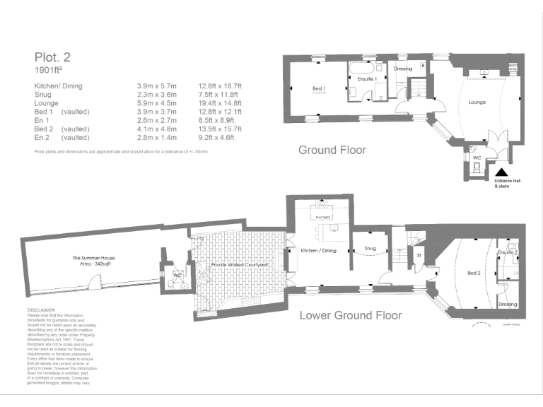
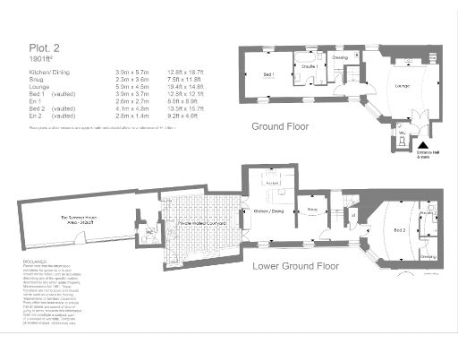
**Standout Features:**
- Spacious 2-bedroom duplex apartment in a historic, Grade II listed building.
- Private walled courtyard and access to beautifully landscaped communal gardens.
- Elegant master suite featuring en-suite bathroom and walk-in wardrobe.
- High-end kitchen with quartz worktops, modern appliances, and an inviting breakfast bar.
- Generous living area with a feature fireplace and underfloor heating.
- Garage with electric door and additional parking space.
- Underfloor heating throughout the ground floor and stylish design elements throughout.
This exquisite 2-bedroom duplex apartment situated in the heart of Lichfield is a rare gem combining luxury living with historical charm. Located in the meticulously restored former Angel Croft Hotel, built in 1750, this stunning residence boasts high ceilings, original features, and expansive living spaces. The elegant kitchen, complete with a quartz worktop and integrated appliances, provides a perfect setting for culinary enthusiasts, while the sun-filled reception room with a gas stove adds a cozy touch.
Enjoy the serenity of your private walled courtyard and the picturesque communal garden, ideal for both relaxation and entertaining. The master suite is a true sanctuary, offering an elegant en-suite and a generous walk-in wardrobe with garden views. With a garage and an additional parking space, convenience is at your fingertips.
While the property falls within a high-crime area, its luxurious features and prime location in an affluent community elevate its appeal. Priced at £935,000, this rare opportunity for elegant living in a celebrated historical setting won't last long. With flexibility for future renovations, imagine creating your dream home while enjoying all the amenities and rich culture that beautiful Lichfield has to offer. Schedule your viewing today!
2 bedroom apartment for sale in 1 Beacon Street,
Lichfield,
Staffordshire,
WS13 7AA, WS13 — £825,000 • 2 bed • 2 bath • 1755 ft²
2 bedroom apartment for sale in 1 Beacon Street,
Lichfield,
Staffordshire,
WS13 7AA, WS13 — £900,000 • 2 bed • 2 bath • 1787 ft²
2 bedroom apartment for sale in 1 Beacon Street,
Lichfield,
Staffordshire,
WS13 7AA, WS13 — £1,150,000 • 2 bed • 2 bath • 1925 ft²
2 bedroom cottage for sale in 1 Beacon Street,
Lichfield,
Staffordshire,
WS13 7AA, WS13 — £950,000 • 2 bed • 2 bath • 1509 ft²
1 bedroom apartment for sale in 1 Beacon Street,
Lichfield,
Staffordshire,
WS13 7AA, WS13 — £335,000 • 1 bed • 1 bath • 689 ft²
2 bedroom cottage for sale in 1 Beacon Street,
Lichfield,
Staffordshire,
WS13 7AA, WS13 — £465,000 • 2 bed • 2 bath • 1093 ft²






































