**Standout Features:**
- Affordable shared ownership with a current share of 25% for £35,738
- Spacious 3-bedroom end-of-terrace home
- Conveniently located with off-street parking
- Bright living room and modern fitted kitchen
- Private rear garden for outdoor relaxation
- Close proximity to local amenities and well-rated schools
**Potential Concerns:**
- Above-average crime rates in the area
- Property situated in a deprived area
- Requires a good credit history for eligibility
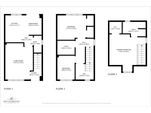
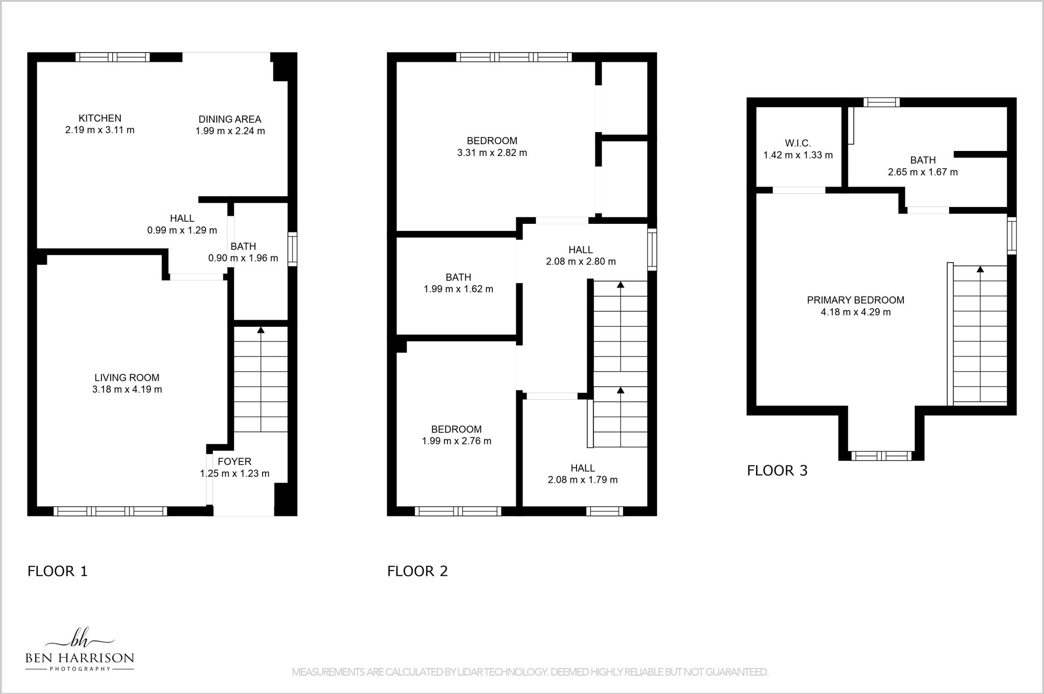
Welcome to your future home in the vibrant town of Darwen, Lancashire! This appealing 3-bedroom end-of-terrace house is perfect for families or first-time buyers looking for an affordable entry into homeownership through shared ownership. The property features a cozy living room, a modern fitted kitchen, and a convenient downstairs WC to enhance everyday living.
Upstairs, two generously sized bedrooms provide flexibility for your family’s needs, while the third bedroom offers additional options for a guest room or home office. Enjoy your charming rear garden, an ideal space for unwinding or gardening activities. With off-street parking and a service charge of just £17.07 a month, this property combines comfort and practicality.
Located in a community-focused area, residents benefit from nearby shops, schools—including several rated 'Good'—and recreational facilities, contributing to a balanced lifestyle. While the area faces above-average crime and is classified as deprived, the property provides an excellent opportunity for personal investment and growth in a supportive neighborhood. Don’t miss your chance to make this lovely house your home; contact us today to learn more!
3 bedroom end of terrace house for sale in 47 Anyon Street, Darwen, BB3 3AA, BB3 — £142,950 • 3 bed • 3 bath
3 bedroom semi-detached house for sale in Roman Terrace, BB2 — £92,250 • 3 bed • 1 bath • 786 ft²
3 bedroom semi-detached house for sale in Hamilton Way,
Blackburn,
BB2 3FF, BB2 — £112,000 • 3 bed • 1 bath • 826 ft²
3 bedroom semi-detached house for sale in Hamilton Way,
Blackburn,
BB2 3FF, BB2 — £56,000 • 3 bed • 1 bath • 826 ft²
3 bedroom semi-detached house for sale in Shaw Green Crescent, Euxton, Chorley, PR7 — £57,500 • 3 bed • 2 bath • 788 ft²
3 bedroom terraced house for sale in Hamilton Way,
Blackburn,
BB2 3FF, BB2 — £187,500 • 3 bed • 1 bath • 1015 ft²


































































































