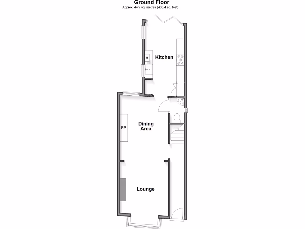
Victorian end-of-terrace with period features and bay window
A two-bedroom Victorian end-of-terrace offering period character and clear scope for renovation, set just moments from Dover town centre and Priory railway station. The freehold home (circa 1930–1949) provides about 740 sq ft across a traditional layout with high ceilings, a bay window and a small rear garden — an appealing blank canvas for a buyer prepared to modernise.
This property will be sold by the Modern Method of Auction and is chain free. Bidders should note an undisclosed reserve price, a non-refundable reservation fee (4.5% of the purchase price, minimum £6,600) and additional buyer costs set out in the buyer information pack. Completion is required within 56 days of the draft contract being received, allowing time for mortgage finance where needed.
The house needs renovation: cavity walls are assumed uninsulated, the double glazing installation date is unknown and some updating to services and finishes is likely. Positively, mains gas boiler and radiators are present, broadband speeds are reported as fast and mobile signal is excellent. The location suits commuters and investors looking for rental potential, but be aware the local area is noted as very deprived and crime levels are very high — factors to weigh for long-term plans.















































































